•     
  • .pv   
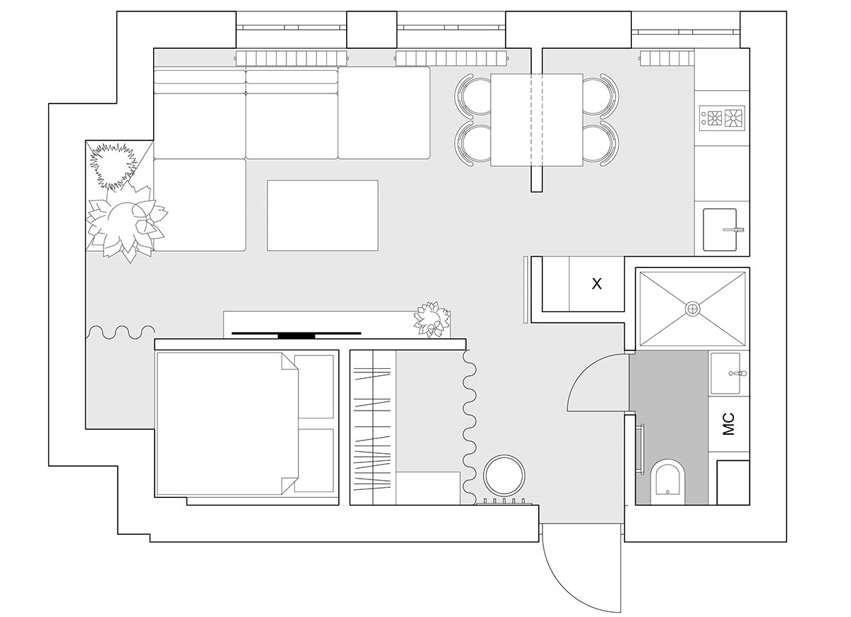
  • 40平米以下采用鲜明黑白木质的装饰小公寓
     2019-11-11 22:10:21

        
    黑色,白色和木质内饰与室内植物相得益彰,为这两个小公寓增添了现代感,尽管每个公寓的面积都在40平方米以下,但Line Design Studio设计的巧妙布局充分利用了有限的居住空间。


    Line Design Studio公寓住宅建筑
  • 图片信息简介:40平米以下采用鲜明黑白木质的装饰小公寓·编号为978444,Line Design Studio是作者,上传时间为2019-11-11 22:10:21,模式为RGB!
  • 上一篇  高对比度变色光致的滑雪镜
    下一篇  谈判合作的女白领
    相关系列作品
    40平米以下采用鲜明黑白木质的装饰小公寓

    38 张  

  • 40平米以下采用鲜明黑白木质的装饰小公寓
  •   家居建筑 
  •   2019-11-11

    Stefano Boeri Architetti在乌得勒支完成了最新的垂直森林摩天大楼

    15 张  

  • Stefano Boeri Architetti在乌得勒支完成了最新的垂直森林摩天大楼
  •   家居建筑 
  •   2025-08-21

    内布拉斯加大学分校-一个用大块木材框架的矩形建筑

    17 张  

  • 内布拉斯加大学分校-一个用大块木材框架的矩形建筑
  •   家居建筑 
  •   2025-06-19

    美国布鲁克林“大量壁龛”大设计的倒角综合体

    4 张  

  • 美国布鲁克林“大量壁龛”大设计的倒角综合体
  •   家居建筑 
  •   2025-06-14

    现代写字楼建筑

    1 张  

  • 现代写字楼建筑
  •   艺术摄影 
  •   2025-06-07

    韩国首尔“窗帘式”砖立面W-Mission办公室大楼

    17 张  

  • 韩国首尔“窗帘式”砖立面W-Mission办公室大楼
  •   家居建筑 
  •   2024-11-28

    立面有一个可步行穿过“峡谷”区的高层建筑

    6 张  

  • 立面有一个可步行穿过“峡谷”区的高层建筑
  •   家居建筑 
  •   2024-10-22

    德国汉堡MSH大学及办公楼

    5 张  

  • 德国汉堡MSH大学及办公楼
  •   家居建筑 
  •   2024-09-19

    瓦伦西亚城市公寓现代极简主义与柔和优雅相遇之旅

    30 张  

  • 瓦伦西亚城市公寓现代极简主义与柔和优雅相遇之旅
  •   家居建筑 
  •   2024-09-09

    Lo Design将金属建筑嵌入费城的褐石后院

    18 张  

  • Lo Design将金属建筑嵌入费城的褐石后院
  •   家居建筑 
  •   2025-07-07

    北卡罗来纳州的房子

    28 张  

  • 北卡罗来纳州的房子
  •   家居建筑 
  •   2025-01-07

    形状似“拼图”的堆叠房屋建筑

    5 张  

  • 形状似“拼图”的堆叠房屋建筑
  •   家居建筑 
  •   2024-11-25

    Arquitectonica和Yabu Pushelberg为迈阿密设计的“有趣”摩天大楼住宅

    8 张  

  • Arquitectonica和Yabu Pushelberg为迈阿密设计的“有趣”摩天大楼住宅
  •   家居建筑 
  •   2024-11-02

    洛杉矶一个不起眼的牧场正在经历日本式的转型建筑设计

    19 张  

  • 洛杉矶一个不起眼的牧场正在经历日本式的转型建筑设计
  •   家居建筑 
  •   2024-10-23

    680.完整的CGI房子

    11 张  

  • 680.完整的CGI房子
  •   家居建筑 
  •   2024-10-22

    希腊住宅区渲染图

    3 张  

  • 希腊住宅区渲染图
  •   家居建筑 
  •   2024-10-13

    受船设计启发的现代住宅

    16 张  

  • 受船设计启发的现代住宅
  •   家居建筑 
  •   2024-09-26

    Vinklu将布加勒斯特被遗忘的阴谋变成了一家小咖啡店

    20 张  

  • Vinklu将布加勒斯特被遗忘的阴谋变成了一家小咖啡店
  •   家居建筑 
  •   2025-09-25

    英国皇家建筑师学会公布2025年斯特林奖入围名单

    10 张  

  • 英国皇家建筑师学会公布2025年斯特林奖入围名单
  •   艺术摄影 
  •   2025-09-06

    ZIQ Office-未来感办公空间的沉浸式设计

    7 张  

  • ZIQ Office-未来感办公空间的沉浸式设计
  •   家居建筑 
  •   2025-08-20

    卡通温馨日常家庭互动插画素材

    1 张  

  • 卡通温馨日常家庭互动插画素材
  •   AI源文件 
  •   2025-08-18

    采用中空设计重塑可持续的模块化针织单椅座椅

    10 张  

  • 采用中空设计重塑可持续的模块化针织单椅座椅
  •   工业设计 
  •   2025-07-30

    双胞胎之家-Graeme Williamson在伦敦为混合家庭创建的双床房红色建筑

    17 张  

  • 双胞胎之家-Graeme Williamson在伦敦为混合家庭创建的双床房红色建筑
  •   家居建筑 
  •   2025-06-26

    MillerKnoll展示了300多件家具的密歇根州总部档案馆

    15 张  

  • MillerKnoll展示了300多件家具的密歇根州总部档案馆
  •   家居建筑 
  •   2025-06-24

    乐高可折叠皇家扑翼机

    13 张  

  • 乐高可折叠皇家扑翼机
  •   工业设计 
  •   2025-06-14

    WOJR完成俯瞰硅谷的角屋

    30 张  

  • WOJR完成俯瞰硅谷的角屋
  •   艺术摄影 
  •   2025-09-28

    木质结构框架的乌兹别克斯坦馆

    12 张  

  • 木质结构框架的乌兹别克斯坦馆
  •   家居建筑 
  •   2025-08-20

    冰雪旋梯-建筑与自然的梦幻融合

    1 张  

  • 冰雪旋梯-建筑与自然的梦幻融合
  •   艺术摄影 
  •   2025-08-02

    现代建筑-自然融合的空间美学

    14 张  

  • 现代建筑-自然融合的空间美学
  •   家居建筑 
  •   2025-07-25

    UTAMED-生态融合建筑设计全景

    6 张  

  • UTAMED-生态融合建筑设计全景
  •   家居建筑 
  •   2025-07-16

    红色螺旋楼梯建筑独特景观

    1 张  

  • 红色螺旋楼梯建筑独特景观
  •   艺术摄影 
  •   2025-07-16

    加拿大岛屿生活天堂度假胜地

    5 张  

  • 加拿大岛屿生活天堂度假胜地
  •   家居建筑 
  •   2025-07-14

    Orior用多米诺风提升爱尔兰工艺广场顶层公寓

    20 张  

  • Orior用多米诺风提升爱尔兰工艺广场顶层公寓
  •   家居建筑 
  •   2025-07-14

  • + 家居建筑