•     
  • .pv   
  • 日本695平米黑暗忍者酒店
     2019-07-30 16:47:11

        
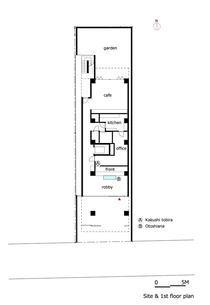
    这是一座关于“影”的建筑。它是一间名为“黑暗忍者”的酒店。坐落于京都市中心,临近京都皇宫的西面,其所在地区的建筑多为住宅、小商铺、公寓、酒店。该项目场地的临街面宽9米,进深35米,是典型的京都建筑地形。基于此,我们规划设计了一间5层楼高且仅有21间住房的小型酒店。


    EASTERN酒店建筑
    该项目的客户是来自京都附近的甲贺市,那里被视为忍者的发源地,他的祖先说不定就是位忍者。就该项目而言,“忍者”在这里又代表着什么呢?种种关于忍者的故事里,他们总是与“影”为伴,也渐渐成为了影子,来去无踪。
    因此,我们便以“影”作为这间酒店的设计理念:神秘、幽暗、谧静,却有着强烈的存在感。该建筑在外立面上所展现出的虚多于实,这与设计理念相呼应,体现忍者如影子一般,可藏身于任何地方。整个外立面都覆盖着“格子”,一种日式窗格。建筑的一楼、二楼、顶楼分别安置了与外立面垂直的屋檐,但这并不影响窗格的整体效果。外立面的窗格其实是由两层组成,每一层都带有交叉V形图案,每个图案相互间隔半个跨度,以加深“影”的效果。
    每个单个窗格的一侧面被漆作褐色,包括正面在内的其余面均为黑色,这样一来,访客从东侧走来时,他们将会看到一座褐色外立面的酒店。越接近酒店越会发现,酒店逐渐退去褐色的外表,成为一座全黑的建筑。室内的设计重点在于“黑暗”,通过各种手段使其能在这座现代化酒店里得到最大化的体现。并且,游客可在酒店体验一把忍者式的花招。
    例如,酒店大堂前台前侧的地板处嵌有一个“落穴”,这是一个忍者的机关陷阱,在其很深的底部装有50根尖锐木刺。当然了,这个机关上覆盖着一层与地板齐平的厚玻璃。由于机关的位置正好在通往前台的必经途中,当游客初次经过时必会大吃一惊
    当游客抵至前台时,迎接他们的并非酒店员工,而是一面饰满金叶的实心墙。霎时间,一个忍者现身于“隐门”,这是一道隐形旋转门,在忍者(前台工作人员)突然出现时打开,又迅速闭合。忍者的暗器“手里剑”被作为装饰嵌在酒店内墙上。酒店内神出鬼没的不止是前台工作人员,连忍者的剪影也是,以“错视”的方式,时而投影到一楼主通道的墙上。此外,酒店员工的穿着打扮也均是忍者模样。如此这般,游客随时随地都能感受到该酒店内忍者强烈的存在感。
  • 图片信息简介:日本695平米黑暗忍者酒店·编号为974905,EASTERN是作者,上传时间为2019-07-30 16:47:11,模式为RGB!
  • 上一篇  LeviSarha推出两项全新的多功能协作家具
    下一篇  变得简单最小化的圆形挂钟
    相关系列作品
    日本695平米黑暗忍者酒店

    31 张  

  • 日本695平米黑暗忍者酒店
  •   家居建筑 
  •   2019-07-30

    凹进转角阳台-日本EASTERN东区工设计事务所作室作品

    18 张  

  • 凹进转角阳台-日本EASTERN东区工设计事务所作室作品
  •   家居建筑 
  •   2013-08-23

    Keyhole京都府楼房设计-东区建筑设计事务所作品

    15 张  

  • Keyhole京都府楼房设计-东区建筑设计事务所作品
  •   家居建筑 
  •   2013-02-22

    Rob Lutter摄影师作品-Eastern Asia东亚纪实

    15 张  

  • Rob Lutter摄影师作品-Eastern Asia东亚纪实
  •   艺术摄影 
  •   2012-02-11

    意大利Eastern Europe revised80年度的时尚女人影像

    19 张  

  • 意大利Eastern Europe revised80年度的时尚女人影像
  •   艺术摄影 
  •   2011-04-08

    来自Dillon Marsh摄影师人像作品集:Eastern and Southern Africa东部和南部非洲

    12 张  

  • 来自Dillon Marsh摄影师人像作品集:Eastern and Southern Africa东部和南部非洲
  •   艺术摄影 
  •   2010-09-06

    BIG为阿布扎比萨迪亚特岛设计的豪华酒店住宅

    4 张  

  • BIG为阿布扎比萨迪亚特岛设计的豪华酒店住宅
  •   艺术摄影 
  •   2024-11-25

    荣获2024年世界最佳高层建筑奖-新加坡绿色露台豪华酒店

    7 张  

  • 荣获2024年世界最佳高层建筑奖-新加坡绿色露台豪华酒店
  •   家居建筑 
  •   2024-10-16

    FAHD宾馆酒店设计

    20 张  

  • FAHD宾馆酒店设计
  •   家居建筑 
  •   2024-03-23

    逼真的酒店房门防盗门素材

    1 张  

  • 逼真的酒店房门防盗门素材
  •   AI源文件 
  •   2024-01-09

    模糊了物理和幻想之间界限的梦幻家居设计

    13 张  

  • 模糊了物理和幻想之间界限的梦幻家居设计
  •   家居建筑 
  •   2023-08-24

    黑屋酒店别墅

    8 张  

  • 黑屋酒店别墅
  •   家居建筑 
  •   2023-08-22

    杭州上城靛蓝酒店室内设计

    38 张  

  • 杭州上城靛蓝酒店室内设计
  •   家居建筑 
  •   2023-06-13

    蓝色DJ酒店蹦迪场景素材下载

    1 张  

  • 蓝色DJ酒店蹦迪场景素材下载
  •   AI源文件 
  •   2023-04-02

    黑白几何感建筑立面

    1 张  

  • 黑白几何感建筑立面
  •   艺术摄影 
  •   2025-09-25

    英国皇家建筑师学会公布2025年斯特林奖入围名单

    10 张  

  • 英国皇家建筑师学会公布2025年斯特林奖入围名单
  •   艺术摄影 
  •   2025-09-06

    Stefano Boeri Architetti在乌得勒支完成了最新的垂直森林摩天大楼

    15 张  

  • Stefano Boeri Architetti在乌得勒支完成了最新的垂直森林摩天大楼
  •   家居建筑 
  •   2025-08-21

    木质结构框架的乌兹别克斯坦馆

    12 张  

  • 木质结构框架的乌兹别克斯坦馆
  •   家居建筑 
  •   2025-08-20

    建筑光影-黄昏下的都市立面

    1 张  

  • 建筑光影-黄昏下的都市立面
  •   艺术摄影 
  •   2025-08-02

    城市地标-桥梁与建筑的时空对话

    1 张  

  • 城市地标-桥梁与建筑的时空对话
  •   艺术摄影 
  •   2025-08-02

    HINGAMINE-与自然融合场景的生态建筑

    3 张  

  • HINGAMINE-与自然融合场景的生态建筑
  •   家居建筑 
  •   2025-07-17

    星空下的天文台夜景

    1 张  

  • 星空下的天文台夜景
  •   艺术摄影 
  •   2025-07-16

  • + 家居建筑