•     
  • .pv   
  • 法国900平米砖块Elancourt音乐学校
     2019-05-08 16:02:48

        
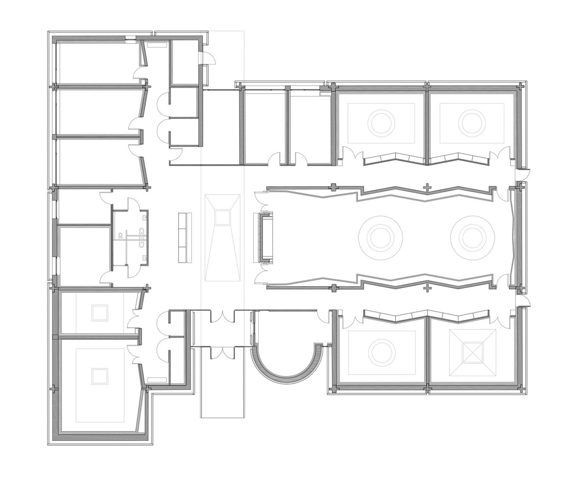
    新的 Elancourt 音乐学校在 Sept Mares 社区的前基督教中心开放,该中心是新城镇 Saint-Quentin en Yvelines 的核心地区之一。该建筑起初是一座礼拜堂,由于其功能需要平和宁静的氛围,建筑采取了简单,没有多余装饰的态度。菲利普·德斯兰德斯(Philippe Deslandes)在1974年至1977年间设计了它,希望它体现简约、模块化和匿名性的特质


    Opus 5 architectes音乐学院音乐学校教学楼建筑楼
    砖和混凝土是呈现在学校中的两种材料。中心且开放的姿态使得该建筑在社区中易于被找到,也便于适应作为音乐学校的新功能。它既是人们文化生活的焦点,也是温馨宜人的聚会场所。
    砖的使用维持了建筑原有内向私密的特点
    建筑师选择用新砖无缝包覆所有立面,将墙壁视为窗户前面的“屏障”,通过完整的外表皮平衡复杂的空间。手工制作的砖采用干砌法铺设,色彩上的细微差别使连续的界面活跃起来
    到了晚上,这个学习和实践机构从室内散发出柔软宁静的光。从周围较高的公寓可以看见其屋顶被覆盖了深蓝色的合成草坪,像蓝色的符号,立即使建筑凸显出来,并在为场地中心增添一抹色彩
    建筑外表的“屏障”平衡了自然光线,使建筑内部充满柔和的自然光,同时赋予每个房间更多的隐私感。建筑师通过对室内空间和谐、明亮和有吸引力的处理,转变了建筑外观带来的严肃印象,吸引了年轻公众。通过塑造灵活的流线,提升空间、光线和材料的质量来实现这一目标,从而将建筑变成一个令人愉悦和满足的空间
    约束和内在性是这个修复项目的特点,它并不追求令人惊奇的外表,而是恢复建筑在城镇中心的地位,赋予它更多和更持久的尊严,激发人们的好奇心,鼓励他们进入其中
  • 图片信息简介:法国900平米砖块Elancourt音乐学校·编号为971657,Opus 5 architectes 是作者,上传时间为2019-05-08 16:02:48,模式为RGB!
  • 上一篇  蓝色天空的沙漠
    下一篇  Intelligentsia美味咖啡
    相关系列作品
    法国900平米砖块Elancourt音乐学校

    35 张  

  • 法国900平米砖块Elancourt音乐学校
  •   家居建筑 
  •   2019-05-08

    欧洲歌剧院米兰的新总部建筑

    3 张  

  • 欧洲歌剧院米兰的新总部建筑
  •   家居建筑 
  •   2019-12-15

    法国亨利.杜蒂耶音乐学院教学大楼

    51 张  

  • 法国亨利.杜蒂耶音乐学院教学大楼
  •   家居建筑 
  •   2019-11-02

    雅典音乐学院天井安装管状编队座位

    6 张  

  • 雅典音乐学院天井安装管状编队座位
  •   工业设计 
  •   2018-06-27

    浙江音乐学院学生公寓

    18 张  

  • 浙江音乐学院学生公寓
  •   家居建筑 
  •   2018-05-25

    1010平米的新祖比亚尔音乐学校

    39 张  

  • 1010平米的新祖比亚尔音乐学校
  •   家居建筑 
  •   2020-10-14

    Arte&Som艺术音乐学校平面广告

    3 张  

  • Arte&Som艺术音乐学校平面广告
  •   平面设计 
  •   2014-04-10

    沙巴萨勒姆大学商学院和生命科学学院建筑楼

    22 张  

  • 沙巴萨勒姆大学商学院和生命科学学院建筑楼
  •   家居建筑 
  •   2021-11-16

    Rektorluk Binası-埃斯基谢希尔大学大楼和图书馆

    11 张  

  • Rektorluk Binası-埃斯基谢希尔大学大楼和图书馆
  •   家居建筑 
  •   2021-08-02

    印度60000平米的红砖男生宿舍楼

    20 张  

  • 印度60000平米的红砖男生宿舍楼
  •   家居建筑 
  •   2021-01-16

    阿姆斯特90000平米的丹彩色学生公寓

    37 张  

  • 阿姆斯特90000平米的丹彩色学生公寓
  •   家居建筑 
  •   2020-11-26

    葡萄牙里斯本4564平米红桥学校

    36 张  

  • 葡萄牙里斯本4564平米红桥学校
  •   家居建筑 
  •   2020-04-03

    宁波市江北区甬江实验学校

    37 张  

  • 宁波市江北区甬江实验学校
  •   家居建筑 
  •   2020-03-09

    中国5000平米的清华大学第四教学楼室室内设计

    26 张  

  • 中国5000平米的清华大学第四教学楼室室内设计
  •   家居建筑 
  •   2020-02-04

    丹麦30700平米的诺德布罗学生公寓

    22 张  

  • 丹麦30700平米的诺德布罗学生公寓
  •   家居建筑 
  •   2020-01-13

    活跃了社会住宅区的巴塞罗那三角形地块红色建筑

    14 张  

  • 活跃了社会住宅区的巴塞罗那三角形地块红色建筑
  •   家居建筑 
  •   2024-05-30

    仰拍的两座建筑楼

    1 张  

  • 仰拍的两座建筑楼
  •   艺术摄影 
  •   2023-07-29

    Eefremova Street 26 的住宅楼

    9 张  

  • Eefremova Street 26 的住宅楼
  •   家居建筑 
  •   2022-08-22

    仰拍的五彩写字楼

    1 张  

  • 仰拍的五彩写字楼
  •   艺术摄影 
  •   2022-08-22

    黑夜中的写字楼图

    1 张  

  • 黑夜中的写字楼图
  •   艺术摄影 
  •   2021-09-15

    LOHA用雪松覆盖建设的底特律John R 2660公寓楼

    10 张  

  • LOHA用雪松覆盖建设的底特律John R 2660公寓楼
  •   家居建筑 
  •   2021-05-13

    雪莉·库拉塔-Sorel-永不停止运动

    13 张  

  • 雪莉·库拉塔-Sorel-永不停止运动
  •   艺术摄影 
  •   2020-06-03

    仰拍的城市建筑黑白图片

    1 张  

  • 仰拍的城市建筑黑白图片
  •   艺术摄影 
  •   2020-06-02

    穆特修斯艺术学院宣传册设计

    13 张  

  • 穆特修斯艺术学院宣传册设计
  •   UI设计 
  •   2021-03-29

    巴哈尔·阿尔斯兰学院

    8 张  

  • 巴哈尔·阿尔斯兰学院
  •   艺术摄影 
  •   2021-02-01

    麻省理工学院主动扫描空气中细菌的口罩

    6 张  

  • 麻省理工学院主动扫描空气中细菌的口罩
  •   工业设计 
  •   2020-11-24

    摩洛哥4382平米的混凝土学院

    33 张  

  • 摩洛哥4382平米的混凝土学院
  •   家居建筑 
  •   2020-10-28

    舞蹈学院社交媒体海报素材

    1 张  

  • 舞蹈学院社交媒体海报素材
  •   AI源文件 
  •   2020-09-15

    采用红砖建造的葡萄牙辛特拉学校

    23 张  

  • 采用红砖建造的葡萄牙辛特拉学校
  •   家居建筑 
  •   2020-03-05

    University Island大学岛

    6 张  

  • University Island大学岛
  •   家居建筑 
  •   2019-10-20

    英国戴森工程技术学院建筑楼

    30 张  

  • 英国戴森工程技术学院建筑楼
  •   家居建筑 
  •   2019-07-06

    黑白几何感建筑立面

    1 张  

  • 黑白几何感建筑立面
  •   艺术摄影 
  •   2025-09-25

    Stefano Boeri Architetti在乌得勒支完成了最新的垂直森林摩天大楼

    15 张  

  • Stefano Boeri Architetti在乌得勒支完成了最新的垂直森林摩天大楼
  •   家居建筑 
  •   2025-08-21

    木质结构框架的乌兹别克斯坦馆

    12 张  

  • 木质结构框架的乌兹别克斯坦馆
  •   家居建筑 
  •   2025-08-20

    建筑光影-黄昏下的都市立面

    1 张  

  • 建筑光影-黄昏下的都市立面
  •   艺术摄影 
  •   2025-08-02

    现代建筑-自然融合的空间美学

    14 张  

  • 现代建筑-自然融合的空间美学
  •   家居建筑 
  •   2025-07-25

    Scoopify Gelato-空间建筑设计

    14 张  

  • Scoopify Gelato-空间建筑设计
  •   家居建筑 
  •   2025-07-16

    星空下的天文台夜景

    1 张  

  • 星空下的天文台夜景
  •   艺术摄影 
  •   2025-07-16

    Orior用多米诺风提升爱尔兰工艺广场顶层公寓

    20 张  

  • Orior用多米诺风提升爱尔兰工艺广场顶层公寓
  •   家居建筑 
  •   2025-07-14

    可持续使用十年的超豪华BANG&OLUFSEN BEO GRACE耳机

    16 张  

  • 可持续使用十年的超豪华BANG&OLUFSEN BEO GRACE耳机
  •   工业设计 
  •   2025-09-25

    迈凯轮推出了BOWERS&WILKINS耳机,它们和他们的汽车一样,设计得过于夸张

    10 张  

  • 迈凯轮推出了BOWERS&WILKINS耳机,它们和他们的汽车一样,设计得过于夸张
  •   工业设计 
  •   2025-08-16

    可以实时翻译和转录您所有会议和通话的AI WS耳机

    5 张  

  • 可以实时翻译和转录您所有会议和通话的AI WS耳机
  •   工业设计 
  •   2025-07-14

    四款吉他班卓琴乐器素材

    1 张  

  • 四款吉他班卓琴乐器素材
  •   AI源文件 
  •   2025-07-08

    进行了大规模升级的MIDI音序器

    10 张  

  • 进行了大规模升级的MIDI音序器
  •   工业设计 
  •   2025-07-02

    Spectrum-透明技术立体音乐耳机

    6 张  

  • Spectrum-透明技术立体音乐耳机
  •   工业设计 
  •   2025-06-26

    简约风音乐海报素材

    1 张  

  • 简约风音乐海报素材
  •   AI源文件 
  •   2025-04-04

    SoBA为中国交响乐团设计具有音乐“曲线与节奏”的公园

    16 张  

  • SoBA为中国交响乐团设计具有音乐“曲线与节奏”的公园
  •   家居建筑 
  •   2025-03-16

  • + 家居建筑