•     
  • .pv   
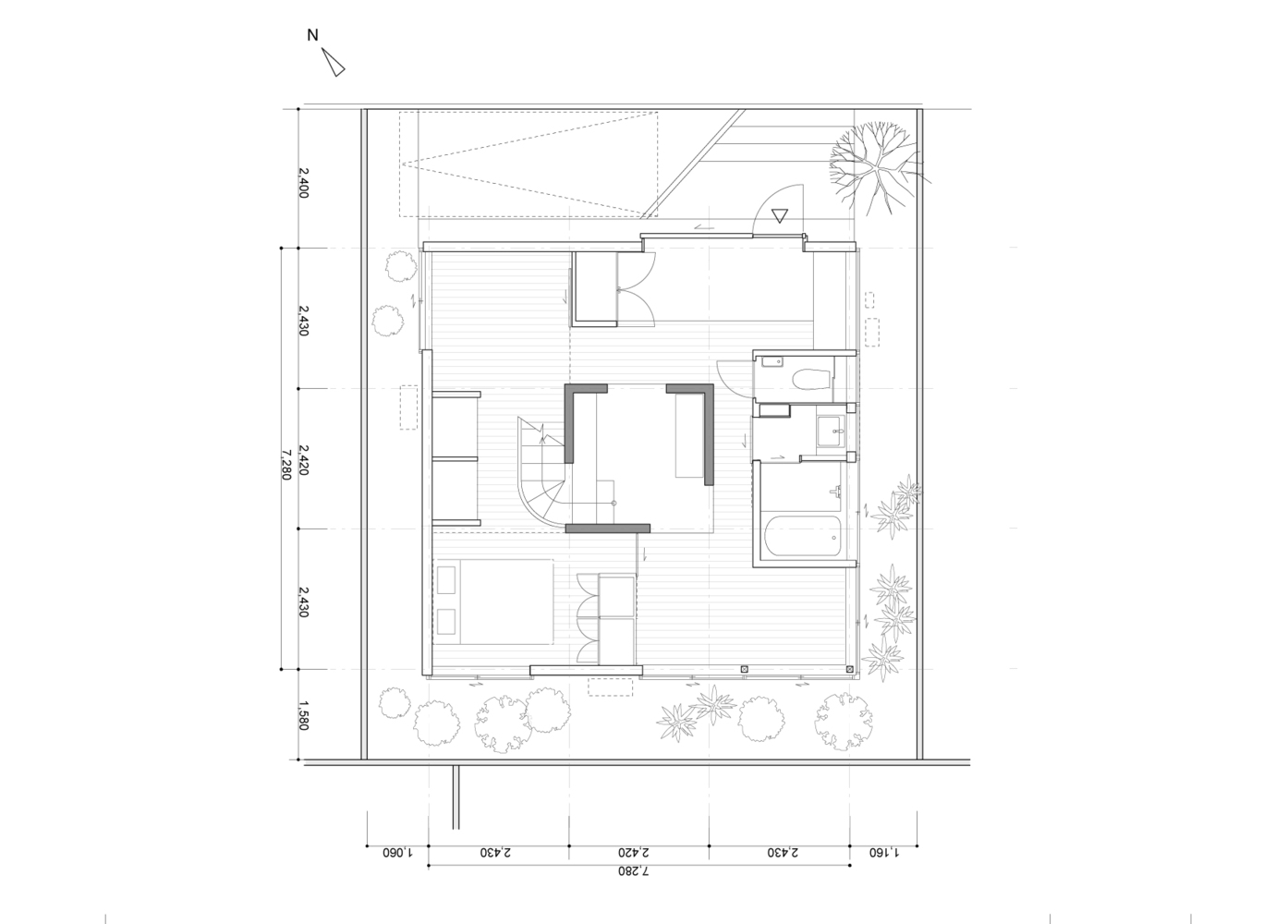
  • 日本102平米的“回”字小住宅
     2019-04-26 15:08:45

        
    这是一栋位于东京郊区的单户住宅。这对年轻夫妇户主的郊区生活准确来说以一周离家工作超过三天为主,而不是将郊区看作都市的附属。这一变动令我们想到一种新的(非现代的)住宅类型,建造它的预算与邻近的量产住宅相差无多。这就需要在不增加总建筑面积的情况下创造不同的空间,以容纳住户的工作场所和满足他们多种个人爱好(包括室内外)的空间。


    tamotsu ito architecture office住宅房子建筑
    这个在狭小地块上设计出的9叠(一个榻榻米)平面相当实用,它的尺寸以日本建造方式的两种模数为基础:2430mm和1820mm。2430 x 3 = 1820 x 4 = 7280。考虑到建造尺寸的经济性和应用惯例,以2430mm为楼面面积模数,1820mm为墙体模数
    通过排列榻榻米布置建筑总平面,就像是将用于不同爱好的零碎空间集合在一起。2430mmX2430mm作为房间来说太小了,但作为个人活动的空间单元又太大了。一叠(一个榻榻米)这个单位既不适用个人行为也不能作为房间。因此,这座按严格规则建造的房屋能引起人们对于空间本体的想像,将人的行为、室内外空间连接在一起,而不需过多地适应时空里会发生的各种事件。
    在不削弱建筑简约性的情况下,设计集合多种手法来混杂它的空间品质。例如,2层的屋顶以对角45度划分来打造矮/高层高的空间,以及通过起居室-餐厅区域引入南面光线。暴露在室内的混凝土被当作基面。基面从外部看与邻近房屋相似,但在内部楼板层被挪向靠近地面,打造出一个不对应外围窗户的楼层。
    汲取日本传统小镇住宅以及农民住宅的形式,入口门户有着两种开启方式,平时以铰接门的形式活动,偶尔可以作为大型滑门开启将外部空间和“土殓”空间(玄关)连接起来。客户提出了一种日本郊区非现代生活方式的愿景,就如自然和都市环境的混合,也如都市和自然的中间点。建筑师在这个项目中尝试用非现代建筑来表述这种愿景,并从新旧生活方式和建筑语汇汲取优点。
  • 图片信息简介:日本102平米的“回”字小住宅·编号为971102,tamotsu ito architecture office是作者,上传时间为2019-04-26 15:08:45,模式为RGB!
  • 上一篇  Porsche Cayenne-2019保时捷卡宴
    下一篇  高清晰绿色蓝海美景壁纸
    相关系列作品
    日本102平米的“回”字小住宅

    27 张  

  • 日本102平米的“回”字小住宅
  •   家居建筑 
  •   2019-04-26

    Lo Design将金属建筑嵌入费城的褐石后院

    18 张  

  • Lo Design将金属建筑嵌入费城的褐石后院
  •   家居建筑 
  •   2025-07-07

    重新构想传统小屋美学的绿色小屋

    15 张  

  • 重新构想传统小屋美学的绿色小屋
  •   家居建筑 
  •   2024-12-03

    BIG为阿布扎比萨迪亚特岛设计的豪华酒店住宅

    4 张  

  • BIG为阿布扎比萨迪亚特岛设计的豪华酒店住宅
  •   艺术摄影 
  •   2024-11-25

    Arquitectonica和Yabu Pushelberg为迈阿密设计的“有趣”摩天大楼住宅

    8 张  

  • Arquitectonica和Yabu Pushelberg为迈阿密设计的“有趣”摩天大楼住宅
  •   家居建筑 
  •   2024-11-02

    与自然融为一体的多伦多的几何家园

    24 张  

  • 与自然融为一体的多伦多的几何家园
  •   家居建筑 
  •   2024-10-23

    一个以自然为灵感的住宅

    21 张  

  • 一个以自然为灵感的住宅
  •   家居建筑 
  •   2024-08-11

    带土棕色米色色调的现代住宅

    7 张  

  • 带土棕色米色色调的现代住宅
  •   家居建筑 
  •   2024-07-20

    营造了“公共氛围”的印度住宅

    14 张  

  • 营造了“公共氛围”的印度住宅
  •   家居建筑 
  •   2024-07-02

    WOJR完成俯瞰硅谷的角屋

    30 张  

  • WOJR完成俯瞰硅谷的角屋
  •   艺术摄影 
  •   2025-09-28

    英国皇家建筑师学会公布2025年斯特林奖入围名单

    10 张  

  • 英国皇家建筑师学会公布2025年斯特林奖入围名单
  •   艺术摄影 
  •   2025-09-06

    四款金色相框组合装饰设计

    1 张  

  • 四款金色相框组合装饰设计
  •   AI源文件 
  •   2025-08-24

    将海洋塑料转化为艺术家居装饰的-水母装饰灯

    10 张  

  • 将海洋塑料转化为艺术家居装饰的-水母装饰灯
  •   工业设计 
  •   2025-07-12

    阿拉·托罗斯雕塑形式定义的“阶梯”家居

    10 张  

  • 阿拉·托罗斯雕塑形式定义的“阶梯”家居
  •   工业设计 
  •   2025-07-07

    以游乐场为灵感的概念椅子-为现代空间带来了回忆和俏皮的设计

    12 张  

  • 以游乐场为灵感的概念椅子-为现代空间带来了回忆和俏皮的设计
  •   工业设计 
  •   2025-07-03

    参照自然的曲线座椅

    13 张  

  • 参照自然的曲线座椅
  •   工业设计 
  •   2025-06-19

    乐高可折叠皇家扑翼机

    13 张  

  • 乐高可折叠皇家扑翼机
  •   工业设计 
  •   2025-06-14

    蓝色房子窗户图

    1 张  

  • 蓝色房子窗户图
  •   艺术摄影 
  •   2025-05-29

    头戴房子帽男模

    1 张  

  • 头戴房子帽男模
  •   艺术摄影 
  •   2025-04-12

    北卡罗来纳州的房子

    28 张  

  • 北卡罗来纳州的房子
  •   家居建筑 
  •   2025-01-07

    追求精简高效生活方式的完美选择

    8 张  

  • 追求精简高效生活方式的完美选择
  •   家居建筑 
  •   2024-12-28

    空中的房子

    1 张  

  • 空中的房子
  •   艺术摄影 
  •   2024-09-11

    50款拥有令人惊叹外墙的现代建筑家居外观

    51 张  

  • 50款拥有令人惊叹外墙的现代建筑家居外观
  •   家居建筑 
  •   2024-09-08

    蓝色魔幻欧式森林小屋

    1 张  

  • 蓝色魔幻欧式森林小屋
  •   AI源文件 
  •   2024-06-29

    海边日落旁边的小屋

    1 张  

  • 海边日落旁边的小屋
  •   艺术摄影 
  •   2024-06-04

    木质结构框架的乌兹别克斯坦馆

    12 张  

  • 木质结构框架的乌兹别克斯坦馆
  •   家居建筑 
  •   2025-08-20

    冰雪旋梯-建筑与自然的梦幻融合

    1 张  

  • 冰雪旋梯-建筑与自然的梦幻融合
  •   艺术摄影 
  •   2025-08-02

    HINGAMINE-与自然融合场景的生态建筑

    3 张  

  • HINGAMINE-与自然融合场景的生态建筑
  •   家居建筑 
  •   2025-07-17

    夜幕下的都市璀璨天际线

    1 张  

  • 夜幕下的都市璀璨天际线
  •   艺术摄影 
  •   2025-07-17

    Scoopify Gelato-空间建筑设计

    14 张  

  • Scoopify Gelato-空间建筑设计
  •   家居建筑 
  •   2025-07-16

    红色螺旋楼梯建筑独特景观

    1 张  

  • 红色螺旋楼梯建筑独特景观
  •   艺术摄影 
  •   2025-07-16

    星空下的天文台夜景

    1 张  

  • 星空下的天文台夜景
  •   艺术摄影 
  •   2025-07-16

    加拿大岛屿生活天堂度假胜地

    5 张  

  • 加拿大岛屿生活天堂度假胜地
  •   家居建筑 
  •   2025-07-14

  • + 家居建筑