•     
  • .pv   
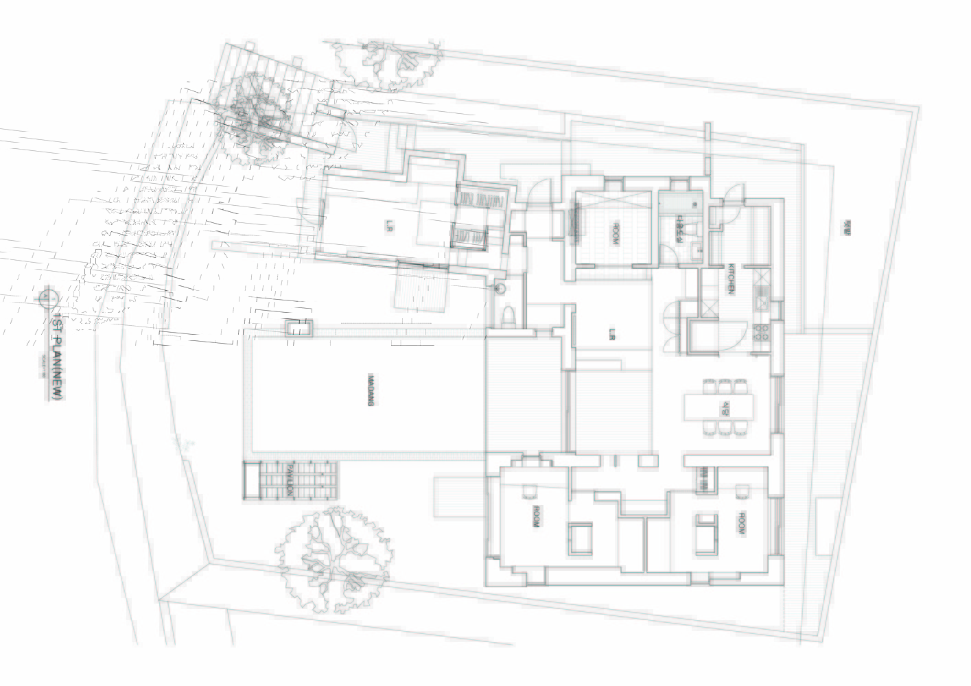
  • 韩国两家人的联合别墅
     2018-10-22 22:07:46

        
    这是两个家庭的联合别墅 ,入口门廊被让两个家庭可以连接或分开。现有结构为56年历史的老房子,基本结构被再使用,其余部分被修复以适应当代的需求,有层次的别墅。住宅内外存在许多层次的原因并不是出于建筑利益的考虑,而是为了减少建在斜坡上的房子的缝隙,可以直接从室内空间到达院子。


    Moohoi Architecture别墅住宅建筑
    这座房子是很久以前建造的,也是时间流逝的痕迹。老树、挡土墙、栅栏、木桁架和碳化韩国地暖系统的有效性是根据新发现的用途来判断的,而不是根据他们作为遗留物的价值被填塞进来。
    光线带来光明,也带来了黑暗。尤其是这幢房子南北朝向的墙身特别厚,导致内部光线不均匀。 为了减少差异,我们安装了天窗,这样光线甚至可以到达室内,一旦窗户被放大,室内的明度和暗度的差别就会增大。
  • 图片信息简介:韩国两家人的联合别墅·编号为965958,Moohoi Architecture是作者,上传时间为2018-10-22 22:07:46,模式为RGB!
  • 上一篇  拒绝堕胎,不要带着这种负罪感-Ludos Studio平面广告
    下一篇  RIVEN-精神分裂症和抑郁症的世界
    相关系列作品
    韩国两家人的联合别墅

    19 张  

  • 韩国两家人的联合别墅
  •   家居建筑 
  •   2018-10-22

    Lomas del Valle之家-现代混凝土原木别墅 自然共生的极简住宅设计

    15 张  

  • Lomas del Valle之家-现代混凝土原木别墅 自然共生的极简住宅设计
  •   家居建筑 
  •   2026-04-05

    OJM之家 __ 现代钢结构架空住宅 自然共生打造极简主义私宅设计

    5 张  

  • OJM之家 __ 现代钢结构架空住宅 自然共生打造极简主义私宅设计
  •   家居建筑 
  •   2026-03-27

    德拉工作室为伦敦莫扎特故居增添了雕塑般的延伸

    33 张  

  • 德拉工作室为伦敦莫扎特故居增添了雕塑般的延伸
  •   家居建筑 
  •   2026-03-25

    现代轻奢别墅全景 热带绿植与流水庭院演绎度假风豪宅

    5 张  

  • 现代轻奢别墅全景 热带绿植与流水庭院演绎度假风豪宅
  •   家居建筑 
  •   2026-03-16

    斯瓦特+合伙人事务所打造可以俯瞰旧金山湾的山坡住宅

    27 张  

  • 斯瓦特+合伙人事务所打造可以俯瞰旧金山湾的山坡住宅
  •   家居建筑 
  •   2026-01-16

    卡朱之家-用耐钢包裹位于怀俄明州的家

    23 张  

  • 卡朱之家-用耐钢包裹位于怀俄明州的家
  •   家居建筑 
  •   2026-01-04

    WOJR完成俯瞰硅谷的角屋

    30 张  

  • WOJR完成俯瞰硅谷的角屋
  •   艺术摄影 
  •   2025-09-28

    Lo Design将金属建筑嵌入费城的褐石后院

    18 张  

  • Lo Design将金属建筑嵌入费城的褐石后院
  •   家居建筑 
  •   2025-07-07

    SOTOGRANDE __ 侘寂风自然共生别墅建筑

    11 张  

  • SOTOGRANDE __ 侘寂风自然共生别墅建筑
  •   家居建筑 
  •   2026-05-16

    森林之眼-自然共生弧形山野别墅 极简禅意的现代住宅设计

    9 张  

  • 森林之眼-自然共生弧形山野别墅 极简禅意的现代住宅设计
  •   家居建筑 
  •   2026-04-06

    H12 - TARANTI ARQ __白色极简住宅 自然共生建筑设计实景

    9 张  

  • H12 - TARANTI ARQ __白色极简住宅 自然共生建筑设计实景
  •   艺术摄影 
  •   2026-04-03

    勒·柯布西耶故居

    27 张  

  • 勒·柯布西耶故居
  •   家居建筑 
  •   2026-03-30

    温哥华第一座以“古玻璃海绵礁”为灵感的超高层摩天大楼

    6 张  

  • 温哥华第一座以“古玻璃海绵礁”为灵感的超高层摩天大楼
  •   家居建筑 
  •   2026-03-30

    Stampede Station-写字楼建筑

    8 张  

  • Stampede Station-写字楼建筑
  •   家居建筑 
  •   2026-03-02

    Wittman Estes在华盛顿的家

    20 张  

  • Wittman Estes在华盛顿的家
  •   家居建筑 
  •   2026-01-31

    MIGUELETES -城央栖居 - 现代轻奢公寓的内外共生美学

    6 张  

  • MIGUELETES -城央栖居 - 现代轻奢公寓的内外共生美学
  •   家居建筑 
  •   2026-01-28

    油润酱香拌面图片

    1 张  

  • 油润酱香拌面图片
  •   艺术摄影 
  •   2026-05-18

    让四块木头融成一个美丽渐变的桌子

    4 张  

  • 让四块木头融成一个美丽渐变的桌子
  •   工业设计 
  •   2026-05-15

    太空视角下的蓝色地球全景摄影

    1 张  

  • 太空视角下的蓝色地球全景摄影
  •   艺术摄影 
  •   2026-05-09

    超精致呈现出春天色调的的户外家具

    19 张  

  • 超精致呈现出春天色调的的户外家具
  •   工业设计 
  •   2026-04-23

    ByBye 旧衣回收转化设备 可持续时尚创新设计

    12 张  

  • ByBye 旧衣回收转化设备 可持续时尚创新设计
  •   工业设计 
  •   2026-04-05

    暖光灯泡特写 复古质感点亮灵感时刻

    1 张  

  • 暖光灯泡特写 复古质感点亮灵感时刻
  •   艺术摄影 
  •   2026-04-03

    在LABASAD巴塞罗那艺术与设计学院的项目中重新构想了20世纪70年代的家

    10 张  

  • 在LABASAD巴塞罗那艺术与设计学院的项目中重新构想了20世纪70年代的家
  •   家居建筑 
  •   2026-03-26

    用爱塑造试验场展厅-打破传统展会展示模式

    18 张  

  • 用爱塑造试验场展厅-打破传统展会展示模式
  •   家居建筑 
  •   2026-03-25

    世博会日本馆建筑设计

    6 张  

  • 世博会日本馆建筑设计
  •   家居建筑 
  •   2026-05-20

    京都日式古塔黄昏剪影风光

    1 张  

  • 京都日式古塔黄昏剪影风光
  •   艺术摄影 
  •   2026-05-20

    BEAUTE? _ 巴黎古典建筑中的现代美妆空间设计

    11 张  

  • BEAUTE? _ 巴黎古典建筑中的现代美妆空间设计
  •   家居建筑 
  •   2026-05-18

    体育场红白座椅的几何秩序之美

    1 张  

  • 体育场红白座椅的几何秩序之美
  •   艺术摄影 
  •   2026-05-14

    安德烈娅・科尼拉的《TABRA》餐厅设计

    20 张  

  • 安德烈娅・科尼拉的《TABRA》餐厅设计
  •   家居建筑 
  •   2026-05-08

    摩洛哥火箭般250米高的建筑

    6 张  

  • 摩洛哥火箭般250米高的建筑
  •   家居建筑 
  •   2026-05-08

    ZGF Architects为圣地亚哥设计的隐形海军海豹突击队博物馆

    5 张  

  • ZGF Architects为圣地亚哥设计的隐形海军海豹突击队博物馆
  •   家居建筑 
  •   2026-05-08

    暖调渐变城市剪影 极简现代都市风光插画

    1 张  

  • 暖调渐变城市剪影 极简现代都市风光插画
  •   AI源文件 
  •   2026-05-07

  • + 家居建筑