•     
  • .pv   
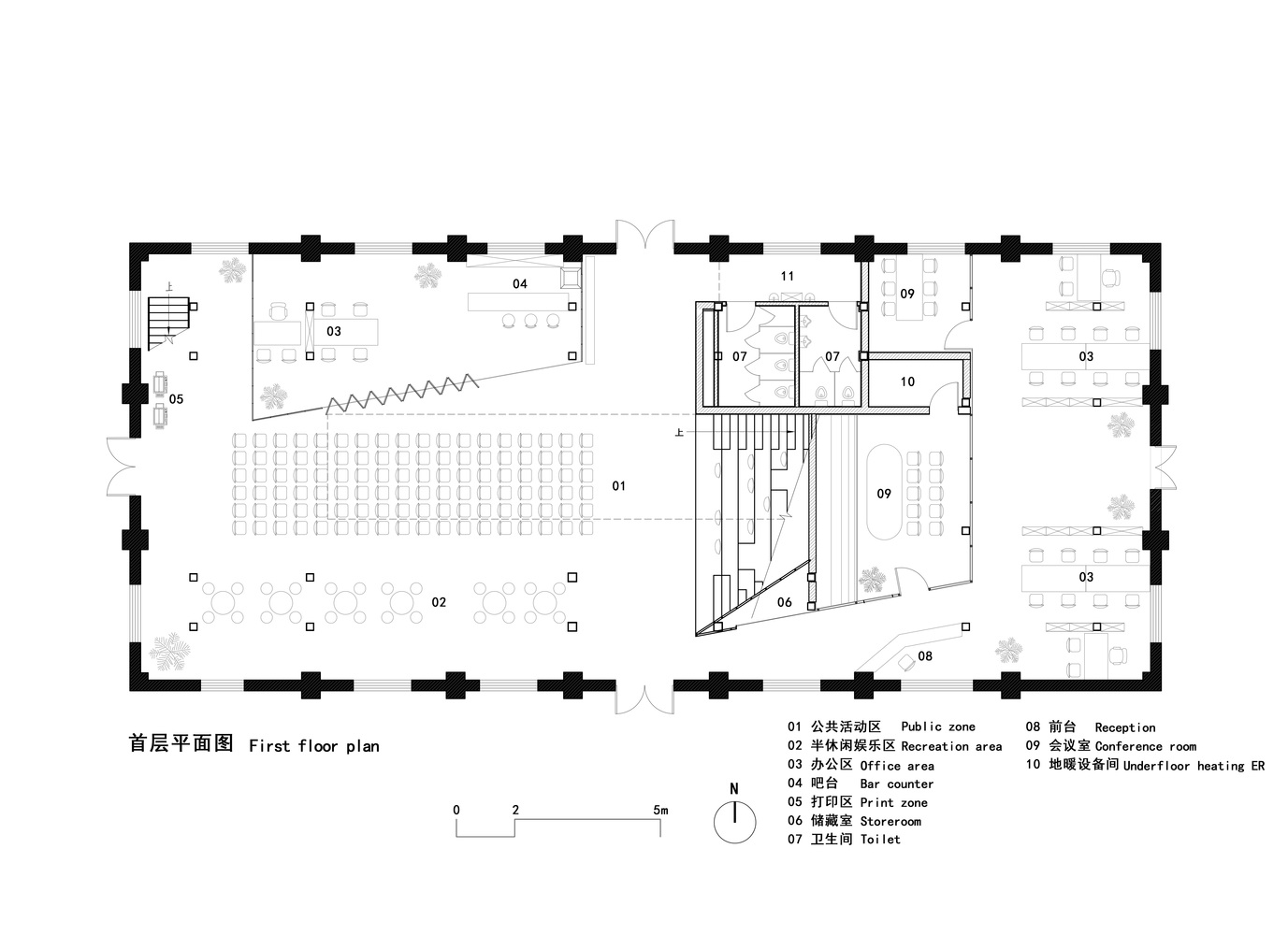
  • 北京中车展示中心 C19厂房改造
     2018-05-27 23:40:33

        
    空间出现的时刻到底是客观的逻辑建立,还是在时间的变化中由主观的反思性介入而浮现出来,在事务所的日常思考中,这成为我们的核心性讨论。在之前完成的留云草堂这一项目中,我们试图将心理的图解直接生成了空间的核心结构逻辑。今年,我们得到一个机会,去探讨改造设计的这另一种思路,即如何与时间对话。


    普罗建筑车库车站展览展厅仓库空间设计
    中车1987文创园位于北京丰台区的二七机车厂内,整个百年厂区的生产区域整体逐步将改造为巨大文创园区,普罗建筑被委托进行示范区的整体建筑改造和规划,未来整体开发将遵循示范区的改造思路和原则进行大范围的推广。C19号厂房位于启动区核心,被计划改造成第一个示范展示中心。
    这些老房子们见证了工业化的辉煌和转变。历史是抽象的,甚至是符号化的,但是我们觉得原始的空间意图却是能感知的,能表达的。这些老房子在建造时意图是明确的,而新的功能植入则表现了新的使用的意图,新意图如果能够尽量的容纳老的历史的意图的继续存在,在我们看来,即是改造对原始建筑历史的有态度的“再呈现
    原始建筑是一栋高大的生产车间,有着极为明亮宽敞的空间感,这让我们意识到这个厂房的高度和气质实际在诉说着他自己的独特历史-即外部的世界在不断变化,而我是一个观察着这个世界的不变的场所,我的历史感造就了与现实世界的脱离,所以我在现实的外部存在着。从建筑物的角度,我们要处理一个“室内”的空间,而从空间意志的角度,我们必须要面对它“意义上的外部”这一现实。
    为了实现这个“外部”的感受,首先我们就把空间的形式感知放在第一位,而功能放在第二位,即空间的形式将使用者关注点放到空间自己的意图诉说上,而不是功能诉求上。这样,我们希望呈现的老空间的意图就不会被新的功能的意图所淹没
    建筑的功能要求被很明显的分成了两个同样重要的部分,一部分是针对外部活动使用,即举办发布会,展览等需要多数人聚集的活动空间,另一部分是作为展示中心自己的功能,即园区项目展示,洽谈,工作人员办公,会议等。这两部分从空间的使用要求上其实存在着对立,公共活动部分要求尽量的开敞,大空间,而展示洽谈办公则希望相对私密。这就形成了具体设计中最大的问题,即如何让两部分共存在一个连贯的空间中,但却互不干扰,同时,每个部分空间都能感受到这部分功能是整个厂房的核心空间,而不被硬性分割成两部分。
    通过对位老建筑上部的天窗和底部前后贯通的两个原始入口,首先我们在“壳”内植入了一个十字型,然后以这个十字形为基准生成了改造后的空间形式。从整体上看,这个植入的部分是一个有着一个中心盒子的连续步行系统。通过这个系统,人们可以从一层拾级而上到达二层,从二层再走到三层,从三层再回到一层,形成一个完全不重复的环形流线。而这个环形步行体系就体现出了作为展示中心的功能,即人们可以通过不同层面的环形浏览去体验原始建筑在不同高度所产生的不同空间变化。在这个环形体系上,分布着不同的功能。
    两部分主要的功能被垂直分区。一层为公共路演区,二三层为展示洽谈办公区。路演区为一个三层通高的中部空间,作为座位的大楼梯从天空上倾泻而下,上面正对着屋顶中部的天窗。这部分感受到新植入的空间包裹着原始的旧空间,成为了原始空间的“意义上的外部”。在楼梯对面可以看到一条环形的白色物体悬浮于厂房的中部。它与原始厂房的墙面完全脱开,边缘处用金属网衔接,空气在其缝隙中自由流通,夜晚到来,这个白色的异质物就像漂浮在老建筑的外壳里,同时它又是人们使用整个空间的线索和发动机。盒子上面有条形的开口隐约看到内部的景象,白色物体上下都露出原始厂房的墙体,在这里,感觉厂房作为一个整体,将植入的物体包裹起来,再次形成了“意义上的外部”。二三层连续的空间被巨大暴露的原始厂房结构屋顶和中部的一个布满开口出风口的白色舱体所定义。在这个联系的空间中感受不到任何一层的感受,而是完全被原始厂房的屋顶和墙壁包裹,中间的舱体盒子暗示了我们在盒子的“外部”,同时通过盒子上的洞口我们看到下方路演区的开敞景象,我们又感到相对于下面的开敞,我们处在上面的一个盒子的“内部”。在连续步行体系上。这样的感受在反复交叠着,不断提醒着我们去思考这个空间存在的意图,思考工业的历史在老房子的空间中留下了如何的精神。
    改造建筑本质上是在跟时间对话。空间的逻辑服务于与原始空间存在意志和意图的尊重与挖掘。新空间的诞生时刻始于诸如对内外部关系的充分思考,发展于使用与体验中的场所解读与认知,终于对材料与结构的感性建构。C19的改造或许成为我们改造设计上的一个转折点。
  • 图片信息简介:北京中车展示中心 C19厂房改造·编号为962719,普罗建筑是作者,上传时间为2018-05-27 23:40:33,模式为RGB!
  • 上一篇  PURO Re-imagined-虚构瓶装水品牌
    下一篇  Russia forest products-俄罗斯森林产品
    相关系列作品
    150平米的杭州甜品店

    20 张  

  • 150平米的杭州甜品店
  •   家居建筑 
  •   2019-04-09

    北京中车展示中心 C19厂房改造

    37 张  

  • 北京中车展示中心 C19厂房改造
  •   家居建筑 
  •   2018-05-27

    行走在地下车库中的风衣女子

    1 张  

  • 行走在地下车库中的风衣女子
  •   艺术摄影 
  •   2025-01-09

    银灰色卷闸门地下车库素材

    1 张  

  • 银灰色卷闸门地下车库素材
  •   AI源文件 
  •   2020-08-31

    设有玻璃车库可陈列汽车的立陶宛Smilg住宅建筑

    13 张  

  • 设有玻璃车库可陈列汽车的立陶宛Smilg住宅建筑
  •   家居建筑 
  •   2020-03-12

    上海逸仙路公交停车场

    27 张  

  • 上海逸仙路公交停车场
  •   家居建筑 
  •   2019-06-27

    高楼立体车库

    1 张  

  • 高楼立体车库
  •   艺术摄影 
  •   2019-04-29

    瑞士高屋顶木制建筑木屋-位于阿尔卑斯山下,三层楼高,一排排的阳台和暴露的木梁,有山墙屋顶和紧闭的窗户,筑容积不够大,通过电梯可以连接到底下的车库。不过既紧凑又宽敞,灵感来自瑞士最古老的小屋

    5 张  

  • 瑞士高屋顶木制建筑木屋-位于阿尔卑斯山下,三层楼高,一排排的阳台和暴露的木梁,有山墙屋顶和紧闭的窗户,筑容积不够大,通过电梯可以连接到底下的车库。不过既紧凑又宽敞,灵感来自瑞士最古老的小屋
  •   家居建筑 
  •   2016-04-04

    巴伐利亚山区的一个狭小房子-位于阿尔卑斯山山麓,清洁线和中性色保持了现代风格。有一个隐形车库,当你打开的露台,可以看到被雪包围的树林,称得上黄金度假屋

    12 张  

  • 巴伐利亚山区的一个狭小房子-位于阿尔卑斯山山麓,清洁线和中性色保持了现代风格。有一个隐形车库,当你打开的露台,可以看到被雪包围的树林,称得上黄金度假屋
  •   家居建筑 
  •   2015-12-09

    Kloof Road克卢夫道馆-占地1100平方米的雕塑建筑,每一个房间都与户外园林花园连接。有四个车库,门厅的倾斜钢屋架悬是最大的特色。主卧室的设计采用了大型开放式阳台,可延伸欣赏到远处,带一个开放式浴室。主套房设有一个带电视和壁炉,还有一个小厨房兼酒吧自己的休息区,是朋友聚会的好场所

    13 张  

  • Kloof Road克卢夫道馆-占地1100平方米的雕塑建筑,每一个房间都与户外园林花园连接。有四个车库,门厅的倾斜钢屋架悬是最大的特色。主卧室的设计采用了大型开放式阳台,可延伸欣赏到远处,带一个开放式浴室。主套房设有一个带电视和壁炉,还有一个小厨房兼酒吧自己的休息区,是朋友聚会的好场所
  •   家居建筑 
  •   2015-09-17

    现代的时尚卡通都市马路图

    1 张  

  • 现代的时尚卡通都市马路图
  •   AI源文件 
  •   2024-04-28

    探索复古火车站,见证历史,享受别样风景

    1 张  

  • 探索复古火车站,见证历史,享受别样风景
  •   艺术摄影 
  •   2023-07-24

    火车站地铁站台图

    1 张  

  • 火车站地铁站台图
  •   艺术摄影 
  •   2023-02-14

    卡通安检检查场景素材下载

    1 张  

  • 卡通安检检查场景素材下载
  •   AI源文件 
  •   2022-08-18

    地铁车站站台

    1 张  

  • 地铁车站站台
  •   艺术摄影 
  •   2022-05-28

    地下地铁车站图

    1 张  

  • 地下地铁车站图
  •   艺术摄影 
  •   2022-04-22

    原巴黎火车站改建的生活单位住房

    10 张  

  • 原巴黎火车站改建的生活单位住房
  •   家居建筑 
  •   2021-07-26

    Rotterdam Centraal鹿特丹中央火车站

    11 张  

  • Rotterdam Centraal鹿特丹中央火车站
  •   家居建筑 
  •   2019-10-24

    AAU Anastas为巴勒斯坦文物展创作的展览设计

    13 张  

  • AAU Anastas为巴勒斯坦文物展创作的展览设计
  •   家居建筑 
  •   2025-06-26

    Guardian Arts-嘉德艺术中心

    6 张  

  • Guardian Arts-嘉德艺术中心
  •   家居建筑 
  •   2024-03-25

    上海西岸美术馆

    14 张  

  • 上海西岸美术馆
  •   家居建筑 
  •   2021-04-28

    美术馆展览展厅素材下载

    1 张  

  • 美术馆展览展厅素材下载
  •   AI源文件 
  •   2020-12-06

    New Danish Modern-新丹麦现代

    13 张  

  • New Danish Modern-新丹麦现代
  •   包装设计 
  •   2020-10-30

    10200平米的西安曲江艺术中心

    23 张  

  • 10200平米的西安曲江艺术中心
  •   家居建筑 
  •   2020-06-09

    中国建筑模型博物馆

    45 张  

  • 中国建筑模型博物馆
  •   家居建筑 
  •   2019-10-24

    艺术之家的诗集展览设计

    23 张  

  • 艺术之家的诗集展览设计
  •   UI设计 
  •   2019-08-29

    “向摄影表示短暂的致敬”-首尔摄影博物馆

    10 张  

  • “向摄影表示短暂的致敬”-首尔摄影博物馆
  •   家居建筑 
  •   2025-07-02

    Moas集团巴西新总部的展厅+办公室

    14 张  

  • Moas集团巴西新总部的展厅+办公室
  •   家居建筑 
  •   2024-12-19

    黑黄颜色展厅展厅素材

    1 张  

  • 黑黄颜色展厅展厅素材
  •   AI源文件 
  •   2024-10-16

    逼真的展台展柜场景矢量插图

    1 张  

  • 逼真的展台展柜场景矢量插图
  •   AI源文件 
  •   2024-10-12

    A-O-E-对称式斜条建筑

    3 张  

  • A-O-E-对称式斜条建筑
  •   家居建筑 
  •   2022-07-22

    杭州家具展厅-PIG Design打造孟菲斯的Ya空间

    8 张  

  • 杭州家具展厅-PIG Design打造孟菲斯的Ya空间
  •   家居建筑 
  •   2021-03-30

    现代陈列室体验

    11 张  

  • 现代陈列室体验
  •   家居建筑 
  •   2020-10-30

    看画展画廊的卡通素材图

    1 张  

  • 看画展画廊的卡通素材图
  •   AI源文件 
  •   2020-10-30

    卡通物流快递仓库架子素材

    1 张  

  • 卡通物流快递仓库架子素材
  •   AI源文件 
  •   2024-06-28

    国外零售售卖货物场景商务图

    5 张  

  • 国外零售售卖货物场景商务图
  •   艺术摄影 
  •   2024-02-02

    现代卡通仓库货架货柜素材

    1 张  

  • 现代卡通仓库货架货柜素材
  •   AI源文件 
  •   2023-09-28

    卡通仓库工人拖车装卸货素材图

    1 张  

  • 卡通仓库工人拖车装卸货素材图
  •   AI源文件 
  •   2023-03-04

    黄颜色的卡通叉车装卸货素材

    1 张  

  • 黄颜色的卡通叉车装卸货素材
  •   AI源文件 
  •   2023-02-22

    卡通物流仓库货仓货架素材下载

    1 张  

  • 卡通物流仓库货仓货架素材下载
  •   AI源文件 
  •   2022-08-29

    卡通物流仓储搬运矢量素材下载

    1 张  

  • 卡通物流仓储搬运矢量素材下载
  •   AI源文件 
  •   2021-03-10

    Matternet无人机设计

    6 张  

  • Matternet无人机设计
  •   工业设计 
  •   2020-03-04

    红色螺旋楼梯建筑独特景观

    1 张  

  • 红色螺旋楼梯建筑独特景观
  •   艺术摄影 
  •   2025-07-16

    50款拥有令人惊叹外墙的现代建筑家居外观

    51 张  

  • 50款拥有令人惊叹外墙的现代建筑家居外观
  •   家居建筑 
  •   2024-09-08

    宁静的极简主义与有机奢华:来自波兰和沙特阿拉伯的2套现代中性内饰

    26 张  

  • 宁静的极简主义与有机奢华:来自波兰和沙特阿拉伯的2套现代中性内饰
  •   家居建筑 
  •   2024-07-19

    Sabine Marcelis为VitraHaus阁楼创作的拼色场景

    10 张  

  • Sabine Marcelis为VitraHaus阁楼创作的拼色场景
  •   家居建筑 
  •   2024-06-29

    墨色芙蓉现代酒店大堂设计

    27 张  

  • 墨色芙蓉现代酒店大堂设计
  •   家居建筑 
  •   2024-06-28

    融合了现代与自然的禅意静修室内空间设计

    30 张  

  • 融合了现代与自然的禅意静修室内空间设计
  •   家居建筑 
  •   2024-06-20

    温哥华使用悬臂的住宅

    30 张  

  • 温哥华使用悬臂的住宅
  •   家居建筑 
  •   2024-05-31

    为您办公室提供舒适和高效小绿洲的现代化工作间

    6 张  

  • 为您办公室提供舒适和高效小绿洲的现代化工作间
  •   家居建筑 
  •   2024-05-30

    被烧焦的橙色环绕墙壁建筑

    38 张  

  • 被烧焦的橙色环绕墙壁建筑
  •   家居建筑 
  •   2025-06-04

    小型现代乡村工作室室内设计

    16 张  

  • 小型现代乡村工作室室内设计
  •   家居建筑 
  •   2024-06-16

    北欧乡村风格的现代室内设计

    31 张  

  • 北欧乡村风格的现代室内设计
  •   家居建筑 
  •   2023-09-23

    KUNZ工作室将巴西山墙式房屋分为两种梯形的设计

    11 张  

  • KUNZ工作室将巴西山墙式房屋分为两种梯形的设计
  •   家居建筑 
  •   2023-09-09

    休斯顿的房子设计

    19 张  

  • 休斯顿的房子设计
  •   家居建筑 
  •   2023-08-27

    温馨素雅家居内饰,尽显生活品质

    27 张  

  • 温馨素雅家居内饰,尽显生活品质
  •   家居建筑 
  •   2023-08-23

    JM建筑公司的风车屋-就像“风景中的一块白色鹅卵石”

    16 张  

  • JM建筑公司的风车屋-就像“风景中的一块白色鹅卵石”
  •   家居建筑 
  •   2023-07-05

    Winnetonka-白色房屋设计

    10 张  

  • Winnetonka-白色房屋设计
  •   艺术摄影 
  •   2022-07-25

    华檐古韵园林建筑图

    1 张  

  • 华檐古韵园林建筑图
  •   艺术摄影 
  •   2025-07-10

    Snøhetta在Roeselare铁路现场增加了三栋建筑,以“重新连接城市”

    15 张  

  • Snøhetta在Roeselare铁路现场增加了三栋建筑,以“重新连接城市”
  •   家居建筑 
  •   2025-07-08

    专为现代周末生活而设计的加州终极最小度假胜地

    12 张  

  • 专为现代周末生活而设计的加州终极最小度假胜地
  •   家居建筑 
  •   2025-06-26

    豪华且可持续的漂浮房屋

    6 张  

  • 豪华且可持续的漂浮房屋
  •   家居建筑 
  •   2025-06-22

    江南水乡的现代建筑房屋

    1 张  

  • 江南水乡的现代建筑房屋
  •   艺术摄影 
  •   2025-06-18

    Nomo Studio将梅诺卡岛房屋的墙壁和屋顶包裹在泥土渲染中

    20 张  

  • Nomo Studio将梅诺卡岛房屋的墙壁和屋顶包裹在泥土渲染中
  •   家居建筑 
  •   2025-05-22

    日式风飞檐古亭子建筑

    1 张  

  • 日式风飞檐古亭子建筑
  •   艺术摄影 
  •   2025-02-15

    形状似“拼图”的堆叠房屋建筑

    5 张  

  • 形状似“拼图”的堆叠房屋建筑
  •   家居建筑 
  •   2024-11-25

    Orior用多米诺风提升爱尔兰工艺广场顶层公寓

    20 张  

  • Orior用多米诺风提升爱尔兰工艺广场顶层公寓
  •   家居建筑 
  •   2025-07-14

    美国布鲁克林“大量壁龛”大设计的倒角综合体

    4 张  

  • 美国布鲁克林“大量壁龛”大设计的倒角综合体
  •   家居建筑 
  •   2025-06-14

    现代写字楼建筑

    1 张  

  • 现代写字楼建筑
  •   艺术摄影 
  •   2025-06-07

    塑造自然与未来-有机优雅的贝伦四合院建筑

    12 张  

  • 塑造自然与未来-有机优雅的贝伦四合院建筑
  •   家居建筑 
  •   2025-04-16

    层叠有序交叉的现代阳台

    1 张  

  • 层叠有序交叉的现代阳台
  •   艺术摄影 
  •   2024-12-21

    立面有一个可步行穿过“峡谷”区的高层建筑

    6 张  

  • 立面有一个可步行穿过“峡谷”区的高层建筑
  •   家居建筑 
  •   2024-10-22

    MT Højgaard-丹麦哥本哈根办公楼

    3 张  

  • MT Højgaard-丹麦哥本哈根办公楼
  •   家居建筑 
  •   2024-09-11

    瓦伦西亚城市公寓现代极简主义与柔和优雅相遇之旅

    30 张  

  • 瓦伦西亚城市公寓现代极简主义与柔和优雅相遇之旅
  •   家居建筑 
  •   2024-09-09

    WOJR完成俯瞰硅谷的角屋

    30 张  

  • WOJR完成俯瞰硅谷的角屋
  •   艺术摄影 
  •   2025-09-28

    Regal London和ACME在伦敦推出铝镶板公寓楼

    3 张  

  • Regal London和ACME在伦敦推出铝镶板公寓楼
  •   家居建筑 
  •   2024-12-06

    BIG为阿布扎比萨迪亚特岛设计的豪华酒店住宅

    4 张  

  • BIG为阿布扎比萨迪亚特岛设计的豪华酒店住宅
  •   艺术摄影 
  •   2024-11-25

    Arquitectonica和Yabu Pushelberg为迈阿密设计的“有趣”摩天大楼住宅

    8 张  

  • Arquitectonica和Yabu Pushelberg为迈阿密设计的“有趣”摩天大楼住宅
  •   家居建筑 
  •   2024-11-02

    洛杉矶一个不起眼的牧场正在经历日本式的转型建筑设计

    19 张  

  • 洛杉矶一个不起眼的牧场正在经历日本式的转型建筑设计
  •   家居建筑 
  •   2024-10-23

    680.完整的CGI房子

    11 张  

  • 680.完整的CGI房子
  •   家居建筑 
  •   2024-10-22

    受船设计启发的现代住宅

    16 张  

  • 受船设计启发的现代住宅
  •   家居建筑 
  •   2024-09-26

    营造了“公共氛围”的印度住宅

    14 张  

  • 营造了“公共氛围”的印度住宅
  •   家居建筑 
  •   2024-07-02

    Vinklu将布加勒斯特被遗忘的阴谋变成了一家小咖啡店

    20 张  

  • Vinklu将布加勒斯特被遗忘的阴谋变成了一家小咖啡店
  •   家居建筑 
  •   2025-09-25

    四款金色相框组合装饰设计

    1 张  

  • 四款金色相框组合装饰设计
  •   AI源文件 
  •   2025-08-24

    手持挂烫机熨烫衣物场景

    1 张  

  • 手持挂烫机熨烫衣物场景
  •   艺术摄影 
  •   2025-08-22

    ZIQ Office-未来感办公空间的沉浸式设计

    7 张  

  • ZIQ Office-未来感办公空间的沉浸式设计
  •   家居建筑 
  •   2025-08-20

    卡通温馨日常家庭互动插画素材

    1 张  

  • 卡通温馨日常家庭互动插画素材
  •   AI源文件 
  •   2025-08-18

    为猫狗宠物打造舒适藏身之处的概念宠物烘干机

    10 张  

  • 为猫狗宠物打造舒适藏身之处的概念宠物烘干机
  •   工业设计 
  •   2025-07-01

    用脖子互相拥抱的帝王企鹅情侣

    1 张  

  • 用脖子互相拥抱的帝王企鹅情侣
  •   艺术摄影 
  •   2025-06-20

    参照自然的曲线座椅

    13 张  

  • 参照自然的曲线座椅
  •   工业设计 
  •   2025-06-19

    黑白调建筑结构特写

    1 张  

  • 黑白调建筑结构特写
  •   艺术摄影 
  •   2025-09-16

    教堂拱形花窗的光影之美

    1 张  

  • 教堂拱形花窗的光影之美
  •   艺术摄影 
  •   2025-09-08

    英国皇家建筑师学会公布2025年斯特林奖入围名单

    10 张  

  • 英国皇家建筑师学会公布2025年斯特林奖入围名单
  •   艺术摄影 
  •   2025-09-06

    冰雪旋梯-建筑与自然的梦幻融合

    1 张  

  • 冰雪旋梯-建筑与自然的梦幻融合
  •   艺术摄影 
  •   2025-08-02

    城市地标-桥梁与建筑的时空对话

    1 张  

  • 城市地标-桥梁与建筑的时空对话
  •   艺术摄影 
  •   2025-08-02

    夜幕下的都市璀璨天际线

    1 张  

  • 夜幕下的都市璀璨天际线
  •   艺术摄影 
  •   2025-07-17

    Scoopify Gelato-空间建筑设计

    14 张  

  • Scoopify Gelato-空间建筑设计
  •   家居建筑 
  •   2025-07-16

    加拿大岛屿生活天堂度假胜地

    5 张  

  • 加拿大岛屿生活天堂度假胜地
  •   家居建筑 
  •   2025-07-14

  • + 家居建筑