•     
  • .pv   
  • 3809平米的弗吉尼亚联邦大学当代艺术中心
     2018-04-30 21:24:43

        
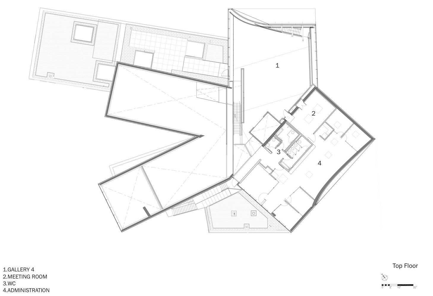
    该项目是位于弗吉尼亚州首府里士满,弗吉尼亚联邦大学校园边的当代艺术中心,将周围社区与大学相连。坐落于里士满最繁华的 Broad 和 Belvidere 大街十字路口,该建筑以一种迷人的开放感成为进入大学的大门。主入口在表演空间和广场的交叉路口,在“X-Y”的轴线上增加一个垂直的“Z"方向元素。一些交叉体量的扭动通过“当前的平面”与美术馆的“分叉时间”相连。


    Steven Holl博览中心展览中心学院学校教学楼
    平面层的垂直交通连接美术馆、表演空间、雕塑园和广场。沿着这个建筑漫步,所有建筑元素的整合可以在变化的视野中得到体验。
    “分叉时间”的概念表明,在当代艺术的世界有许多平行的时代。持续时间的概念及其历史的“宏大叙事”受到质疑。新的当代艺术中心分为四个美术馆,分别扮演不同的角色。它们富有灵活性,可以举办四个独立的展览、一个连续的展览,或者任意组合。美术馆可以关闭布展,而不影响通行。访客可以通过一个超大电梯顺序通过四个美术馆到达顶部并盘旋下降,或从广场最低的美术馆开始上升。美术馆中暴露的混凝土梁和木板与混凝土楼板相辅相成。作为灵活空间,美术馆可以接受悬浮在地板上的艺术品或工程。
    当代艺术中心将会是一个新的大门和催化剂,连接大学校园和里士满。它迷人的双面广场向宁静的雕塑花园敞开,它将为最重要的尖端当代艺术展览提供空间能量。由弗吉尼亚联邦大学一流的艺术学院推动,该建筑是展览、电影放映、公开讲座、演出、座谈会和社区活动的重要工具,吸引这大学、城市和更多可能。
    室外不光泽的半透明玻璃和氧化钛锌表皮有着共同的灰绿色调,给建筑一种变化的存在感,依靠灯光使整体的不透明变化成各种不同的半透明感。四个屋顶花园包括一个在二层的雕塑平台,有着特别订制的艺术家装置。这个LEED 金奖建筑用地热井加热和冷却,在冬季收获同样的能量,在夏季重新储存以冷却建筑物。
    240个作为的灵活表演空间可以放映电影,举办戏剧、舞蹈和音乐表演。它连接了一层和二层,在那里,从美术馆远眺可以看到视觉和表演艺术之间意想不到的景观。
    这座建筑是一种有时间感的室内室外的体验。从西侧(大学校园)步行过来,这座建筑以不断变化的视角展开。如果你步行而来,广场逐渐进入你的视野,伴随着脚下砾石吱吱作响。如果你乘汽车从北、东或南到达,扭转的双重垂直几何体量提醒着你那里就是入口,并随着汽车的经过而改变形状。 到了晚上,磨砂玻璃的发光立面激活了室外空间。 视频投影还可能出现在这些磨砂玻璃墙上,用艺术动画与户外空间互动
    41000平方英尺(约3809平方米)的建筑有两个表情:一面朝向城市,一面从雕塑园朝向广场,将城市与校园连接。一层,咖啡馆和地面层的美术馆直接通向雕塑园。中轴旋转门可以打开,使活动扩展到花园中。在青石板和砾石铺成的花园中,种植着银杏树。一个巨大的循环水池塘将这个花园塑造成“思考之地”。
  • 图片信息简介:3809平米的弗吉尼亚联邦大学当代艺术中心·编号为961970,Steven Holl是作者,上传时间为2018-04-30 21:24:43,模式为RGB!
  • 上一篇  优雅流行的红色外观-闪闪发亮的眼影与红色指甲
    下一篇  日本在新西兰设计的生态时尚服装商店-这些服装店由一系列板条木板定义
    相关系列作品
    3809平米的弗吉尼亚联邦大学当代艺术中心

    23 张  

  • 3809平米的弗吉尼亚联邦大学当代艺术中心
  •   家居建筑 
  •   2018-04-30

    纽约建筑师Steven Holl-当代艺术的新学院

    6 张  

  • 纽约建筑师Steven Holl-当代艺术的新学院
  •   家居建筑 
  •   2012-05-13

    Guardian Arts-嘉德艺术中心

    6 张  

  • Guardian Arts-嘉德艺术中心
  •   家居建筑 
  •   2024-03-25

    12展览中心

    15 张  

  • 12展览中心
  •   UI设计 
  •   2019-10-12

    Ambiguity II亚利桑那州坦佩的纳尔逊美术中心

    13 张  

  • Ambiguity II亚利桑那州坦佩的纳尔逊美术中心
  •   艺术摄影 
  •   2018-10-21

    保时捷斯图加特博物馆

    8 张  

  • 保时捷斯图加特博物馆
  •   家居建筑 
  •   2018-05-03

    达米昂・德戈伊斯尔-葡萄牙博物馆

    6 张  

  • 达米昂・德戈伊斯尔-葡萄牙博物馆
  •   家居建筑 
  •   2017-11-18

    Katowice卡托维兹历史博物馆/证书品牌设计

    42 张  

  • Katowice卡托维兹历史博物馆/证书品牌设计
  •   UI设计 
  •   2014-09-02

    澳大利亚昆士兰现代美术馆建筑设计-一个轻量级的,开放的水榭展览空间,分两大层面,有两个电影院,教育设施,餐厅和商店咖啡馆

    11 张  

  • 澳大利亚昆士兰现代美术馆建筑设计-一个轻量级的,开放的水榭展览空间,分两大层面,有两个电影院,教育设施,餐厅和商店咖啡馆
  •   家居建筑 
  •   2014-06-21

    加州建筑师amphibianArc作品-像一个巨大昆虫翅膀的中国机械公司-中联重科总部展览中心

    16 张  

  • 加州建筑师amphibianArc作品-像一个巨大昆虫翅膀的中国机械公司-中联重科总部展览中心
  •   家居建筑 
  •   2012-07-15

    沙巴萨勒姆大学商学院和生命科学学院建筑楼

    22 张  

  • 沙巴萨勒姆大学商学院和生命科学学院建筑楼
  •   家居建筑 
  •   2021-11-16

    巴哈尔·阿尔斯兰学院

    8 张  

  • 巴哈尔·阿尔斯兰学院
  •   艺术摄影 
  •   2021-02-01

    麻省理工学院主动扫描空气中细菌的口罩

    6 张  

  • 麻省理工学院主动扫描空气中细菌的口罩
  •   工业设计 
  •   2020-11-24

    摩洛哥4382平米的混凝土学院

    33 张  

  • 摩洛哥4382平米的混凝土学院
  •   家居建筑 
  •   2020-10-28

    苏格兰威士忌学院-一系列讲座和教育课程。

    17 张  

  • 苏格兰威士忌学院-一系列讲座和教育课程。
  •   UI设计 
  •   2020-07-04

    去功能化空间的印度克雷森特大学建筑学院

    53 张  

  • 去功能化空间的印度克雷森特大学建筑学院
  •   家居建筑 
  •   2020-01-05

    澳大利亚科廷大学设计学院新址方案

    5 张  

  • 澳大利亚科廷大学设计学院新址方案
  •   家居建筑 
  •   2019-10-25

    澳大利亚4140平米的比利玛学院中学校区建筑

    34 张  

  • 澳大利亚4140平米的比利玛学院中学校区建筑
  •   家居建筑 
  •   2019-07-25

    卡通儿童游泳学校等距仰泳矢量图

    1 张  

  • 卡通儿童游泳学校等距仰泳矢量图
  •   AI源文件 
  •   2024-12-04

    四款学校纸质书矢量插图

    1 张  

  • 四款学校纸质书矢量插图
  •   AI源文件 
  •   2024-10-08

    未来的学校VR设备- 颠覆传统教育方式

    11 张  

  • 未来的学校VR设备- 颠覆传统教育方式
  •   工业设计 
  •   2023-07-25

    再见!学校-毕业卡通素材下载

    1 张  

  • 再见!学校-毕业卡通素材下载
  •   AI源文件 
  •   2022-04-13

    卡通学校理科学生素材下载

    1 张  

  • 卡通学校理科学生素材下载
  •   AI源文件 
  •   2022-03-29

    中国台湾大学90周年校庆主视觉设计

    5 张  

  • 中国台湾大学90周年校庆主视觉设计
  •   UI设计 
  •   2021-06-02

    残缺美-关爱腿脚不方便的卡通朋友素材

    1 张  

  • 残缺美-关爱腿脚不方便的卡通朋友素材
  •   AI源文件 
  •   2020-11-30

    时尚动感街舞宣传海报PSD分层素材下载

    1 张  

  • 时尚动感街舞宣传海报PSD分层素材下载
  •   AI源文件 
  •   2020-10-31

    迈阿密海滩粉红色建筑图

    8 张  

  • 迈阿密海滩粉红色建筑图
  •   家居建筑 
  •   2023-04-23

    阿姆斯特90000平米的丹彩色学生公寓

    37 张  

  • 阿姆斯特90000平米的丹彩色学生公寓
  •   家居建筑 
  •   2020-11-26

    1010平米的新祖比亚尔音乐学校

    39 张  

  • 1010平米的新祖比亚尔音乐学校
  •   家居建筑 
  •   2020-10-14

    葡萄牙里斯本4564平米红桥学校

    36 张  

  • 葡萄牙里斯本4564平米红桥学校
  •   家居建筑 
  •   2020-04-03

    墨尔本 9700平米的大学南岸中心

    33 张  

  • 墨尔本 9700平米的大学南岸中心
  •   家居建筑 
  •   2020-03-26

    采用红砖建造的葡萄牙辛特拉学校

    23 张  

  • 采用红砖建造的葡萄牙辛特拉学校
  •   家居建筑 
  •   2020-03-05

    越南2200平米的Da Hop幼儿园+小学教学楼建筑

    34 张  

  • 越南2200平米的Da Hop幼儿园+小学教学楼建筑
  •   家居建筑 
  •   2020-02-19

    UTSC Highland Hall-多伦多大学士嘉堡分校的新高地礼堂

    29 张  

  • UTSC Highland Hall-多伦多大学士嘉堡分校的新高地礼堂
  •   家居建筑 
  •   2020-02-11

    WOJR完成俯瞰硅谷的角屋

    30 张  

  • WOJR完成俯瞰硅谷的角屋
  •   艺术摄影 
  •   2025-09-28

    黑白几何感建筑立面

    1 张  

  • 黑白几何感建筑立面
  •   艺术摄影 
  •   2025-09-25

    黑白调建筑结构特写

    1 张  

  • 黑白调建筑结构特写
  •   艺术摄影 
  •   2025-09-16

    木质结构框架的乌兹别克斯坦馆

    12 张  

  • 木质结构框架的乌兹别克斯坦馆
  •   家居建筑 
  •   2025-08-20

    Scoopify Gelato-空间建筑设计

    14 张  

  • Scoopify Gelato-空间建筑设计
  •   家居建筑 
  •   2025-07-16

    星空下的天文台夜景

    1 张  

  • 星空下的天文台夜景
  •   艺术摄影 
  •   2025-07-16

    加拿大岛屿生活天堂度假胜地

    5 张  

  • 加拿大岛屿生活天堂度假胜地
  •   家居建筑 
  •   2025-07-14

    Orior用多米诺风提升爱尔兰工艺广场顶层公寓

    20 张  

  • Orior用多米诺风提升爱尔兰工艺广场顶层公寓
  •   家居建筑 
  •   2025-07-14

  • + 家居建筑