•     
  • .pv   
  • 泰国曼谷-55525平米超高方块公寓建筑
     2017-09-05 20:18:17

        
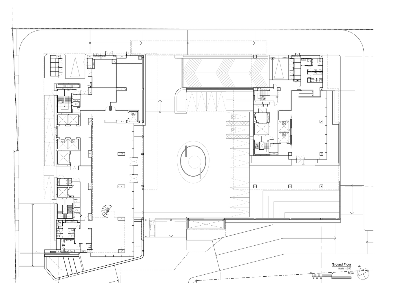
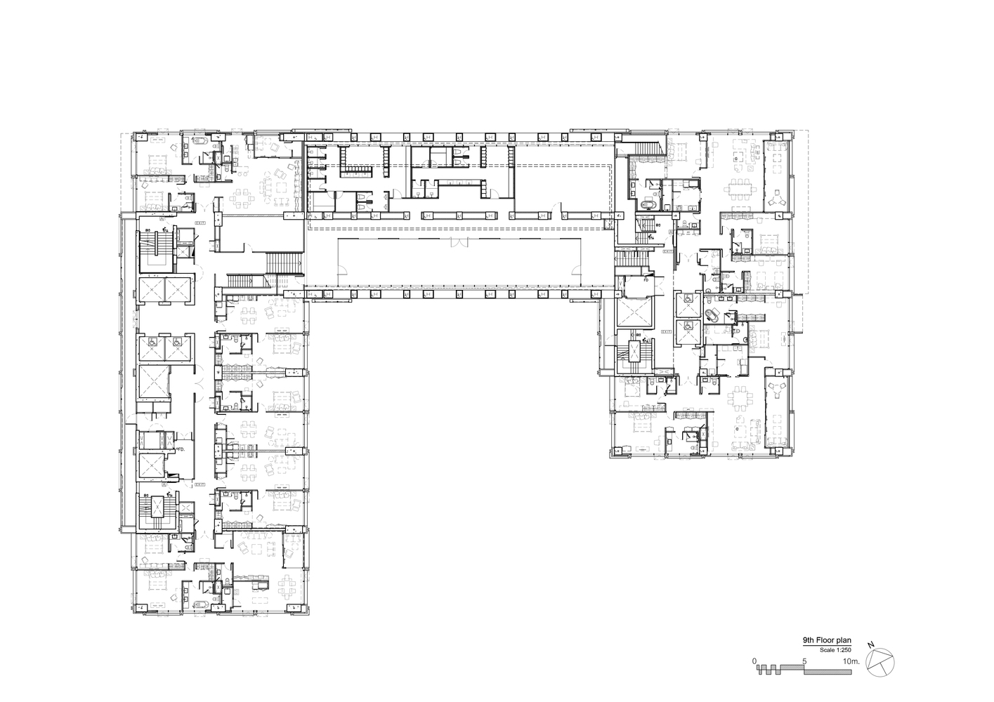
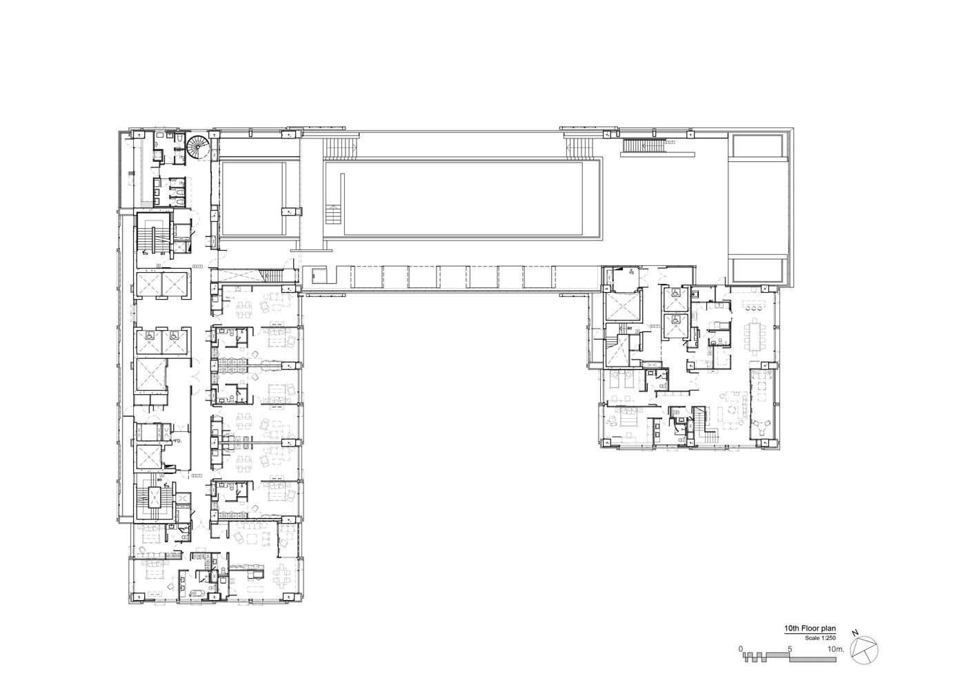
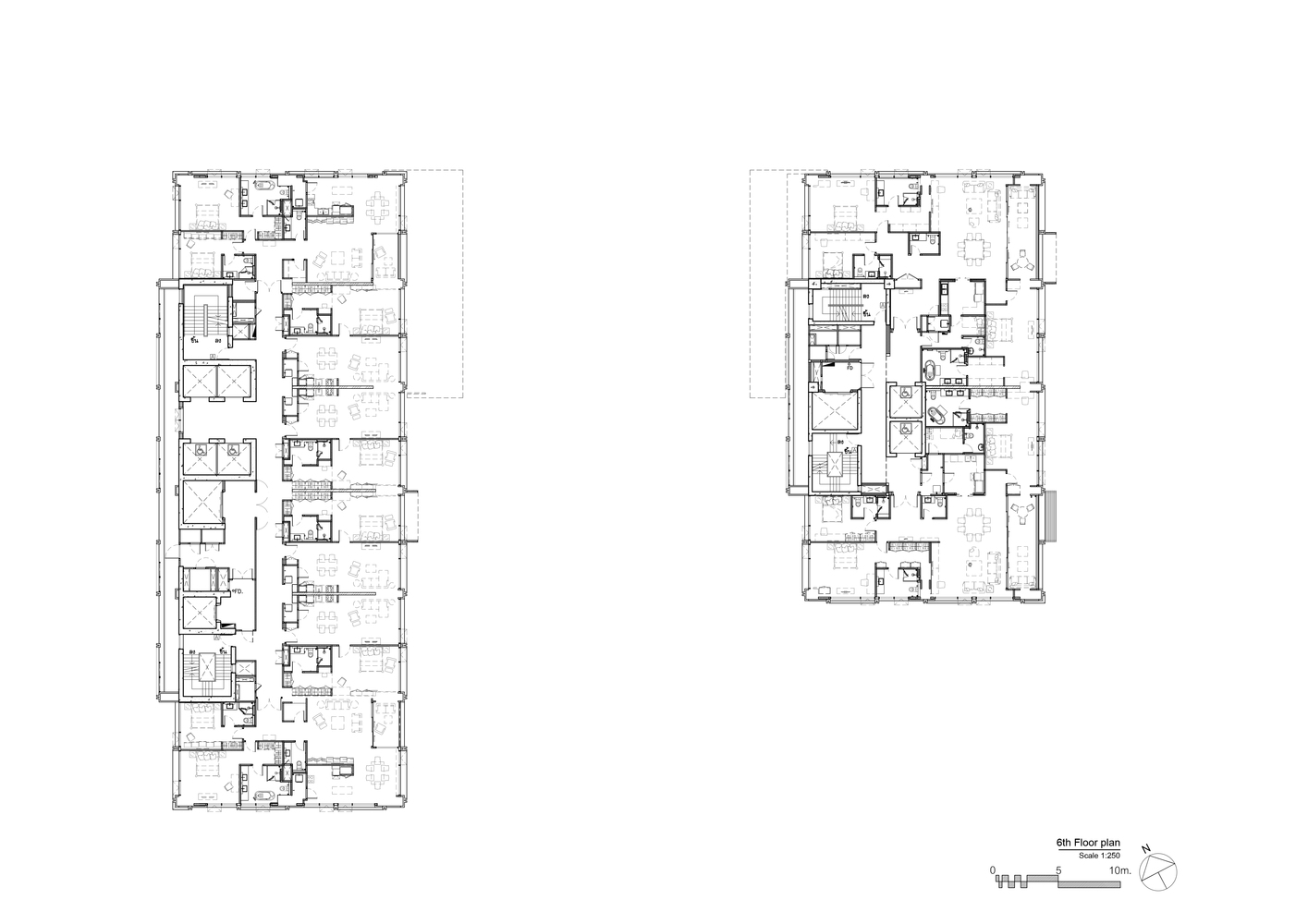
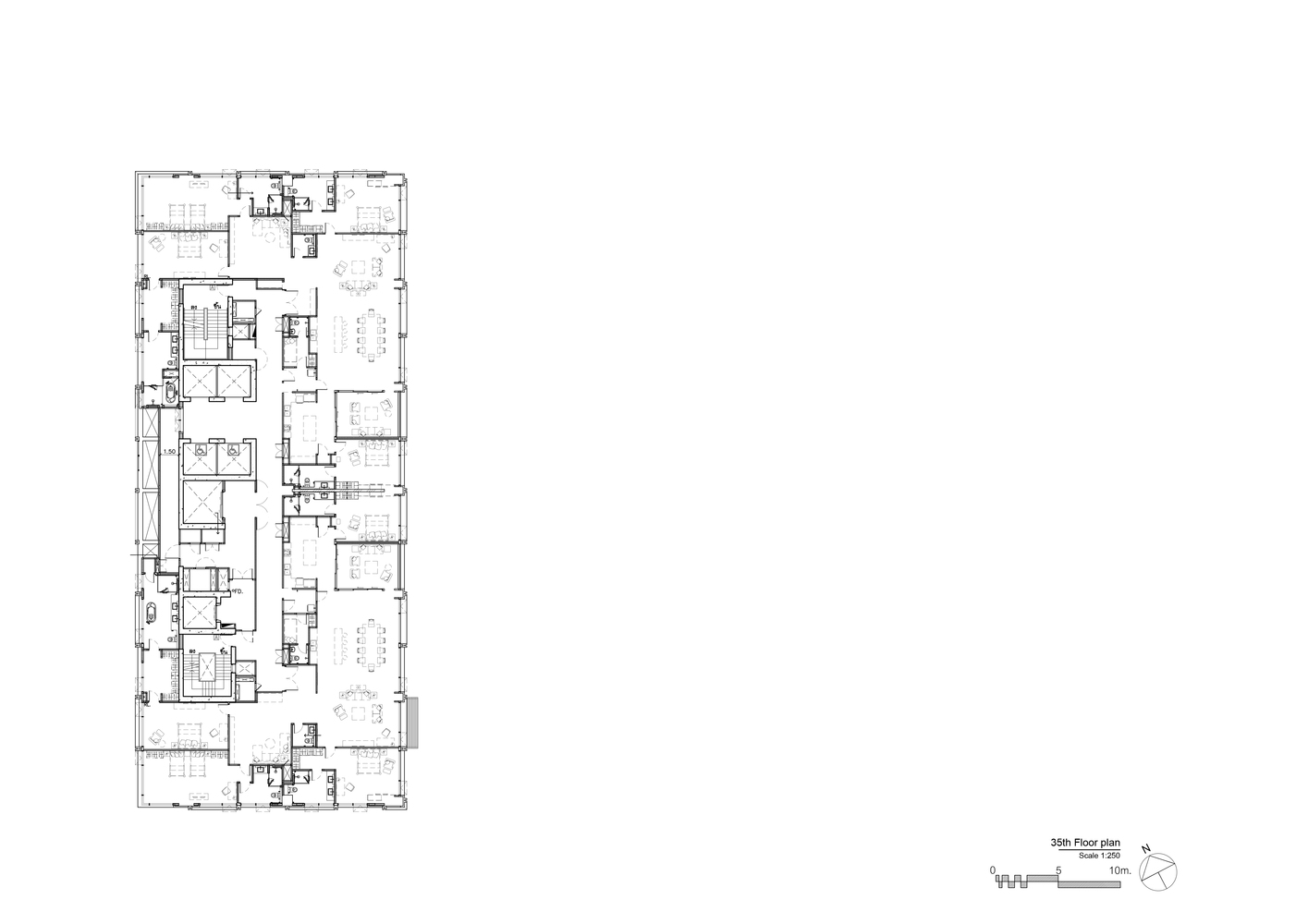
    Sindhorn 豪华公寓位于曼谷市中心的 Tonson 街,周围有很多国际大使馆,绿化优美。地理位置限制了公寓的高度,所以我们决定把公寓分为一高一低两栋楼。这样分开之后,两栋楼之间的主入口广场成为了整个项目的中心区域。我们选择了把停车场安排到了地下室而不是低楼层,在低楼层种植了大量绿化,这样也与喜好接近自然而不是住高楼层的用户生活方式相匹配。


    Plan Architect公寓楼公寓住宅房屋建筑
    两座楼通过巨大的天桥连接在一起,中间有游泳池、健身房、桑拿室和更衣室等多种共享设施。游泳池区设立了主要泳池和休憩泳区,并且池边修建了高级花园。
    另一方面,超出了曼谷大多数楼房的建筑高度使得高层居民可以俯瞰整个美丽的城市
  • 图片信息简介:泰国曼谷-55525平米超高方块公寓建筑·编号为958623,Plan Architect是作者,上传时间为2017-09-05 20:18:17,模式为RGB!
  • 上一篇  阿莱・韦博-多姿多彩的风格-Woman杂志西班牙,蕾丝上衣和刺绣裙,看起来从秋季味浓浓
    下一篇  高清晰红色2017款本田nsx汽车壁纸
    相关系列作品
    泰国AIS 联络中心发展与培训场地

    34 张  

  • 泰国AIS 联络中心发展与培训场地
  •   家居建筑 
  •   2018-06-02

    泰国曼谷-55525平米超高方块公寓建筑

    24 张  

  • 泰国曼谷-55525平米超高方块公寓建筑
  •   家居建筑 
  •   2017-09-05

    BKK建筑师事务所和Cottee Parker设计了澳大利亚最高的摩天大楼

    6 张  

  • BKK建筑师事务所和Cottee Parker设计了澳大利亚最高的摩天大楼
  •   艺术摄影 
  •   2025-07-11

    内布拉斯加大学分校-一个用大块木材框架的矩形建筑

    17 张  

  • 内布拉斯加大学分校-一个用大块木材框架的矩形建筑
  •   家居建筑 
  •   2025-06-19

    现代写字楼建筑

    1 张  

  • 现代写字楼建筑
  •   艺术摄影 
  •   2025-06-07

    阿根廷SO935公寓建筑

    3 张  

  • 阿根廷SO935公寓建筑
  •   家居建筑 
  •   2025-02-26

    层叠有序交叉的现代阳台

    1 张  

  • 层叠有序交叉的现代阳台
  •   艺术摄影 
  •   2024-12-21

    Regal London和ACME在伦敦推出铝镶板公寓楼

    3 张  

  • Regal London和ACME在伦敦推出铝镶板公寓楼
  •   家居建筑 
  •   2024-12-06

    德国汉堡MSH大学及办公楼

    5 张  

  • 德国汉堡MSH大学及办公楼
  •   家居建筑 
  •   2024-09-19

    MT Højgaard-丹麦哥本哈根办公楼

    3 张  

  • MT Højgaard-丹麦哥本哈根办公楼
  •   家居建筑 
  •   2024-09-11

    温哥华第一座以“古玻璃海绵礁”为灵感的超高层摩天大楼

    6 张  

  • 温哥华第一座以“古玻璃海绵礁”为灵感的超高层摩天大楼
  •   家居建筑 
  •   2026-03-30

    在LABASAD巴塞罗那艺术与设计学院的项目中重新构想了20世纪70年代的家

    10 张  

  • 在LABASAD巴塞罗那艺术与设计学院的项目中重新构想了20世纪70年代的家
  •   家居建筑 
  •   2026-03-26

    MIGUELETES -城央栖居 - 现代轻奢公寓的内外共生美学

    6 张  

  • MIGUELETES -城央栖居 - 现代轻奢公寓的内外共生美学
  •   家居建筑 
  •   2026-01-28

    H-T-135-公寓写字楼建筑

    4 张  

  • H-T-135-公寓写字楼建筑
  •   家居建筑 
  •   2025-11-21

    现代高层公寓玻璃阳台建筑的外立面

    1 张  

  • 现代高层公寓玻璃阳台建筑的外立面
  •   艺术摄影 
  •   2025-10-14

    美国布鲁克林“大量壁龛”大设计的倒角综合体

    4 张  

  • 美国布鲁克林“大量壁龛”大设计的倒角综合体
  •   家居建筑 
  •   2025-06-14

    美国城市建筑图

    1 张  

  • 美国城市建筑图
  •   艺术摄影 
  •   2025-06-12

    塑造自然与未来-有机优雅的贝伦四合院建筑

    12 张  

  • 塑造自然与未来-有机优雅的贝伦四合院建筑
  •   家居建筑 
  •   2025-04-16

    SOTOGRANDE __ 侘寂风自然共生别墅建筑

    11 张  

  • SOTOGRANDE __ 侘寂风自然共生别墅建筑
  •   家居建筑 
  •   2026-05-16

    K?nigsberger-Vannucchi用瓷器和木材装饰的圣保罗摩天大楼

    26 张  

  • K?nigsberger-Vannucchi用瓷器和木材装饰的圣保罗摩天大楼
  •   家居建筑 
  •   2026-04-23

    H12 - TARANTI ARQ __白色极简住宅 自然共生建筑设计实景

    9 张  

  • H12 - TARANTI ARQ __白色极简住宅 自然共生建筑设计实景
  •   艺术摄影 
  •   2026-04-03

    勒·柯布西耶故居

    27 张  

  • 勒·柯布西耶故居
  •   家居建筑 
  •   2026-03-30

    OJM之家 __ 现代钢结构架空住宅 自然共生打造极简主义私宅设计

    5 张  

  • OJM之家 __ 现代钢结构架空住宅 自然共生打造极简主义私宅设计
  •   家居建筑 
  •   2026-03-27

    Stampede Station-写字楼建筑

    8 张  

  • Stampede Station-写字楼建筑
  •   家居建筑 
  •   2026-03-02

    垂直森林生态建筑 现代城市绿色人居典范

    1 张  

  • 垂直森林生态建筑 现代城市绿色人居典范
  •   艺术摄影 
  •   2026-02-25

    Seregina 5-晶棱之城 - 乌克兰基辅 Vizir 高端住宅集群

    5 张  

  • Seregina 5-晶棱之城 - 乌克兰基辅 Vizir 高端住宅集群
  •   家居建筑 
  •   2026-01-31

    《平原边缘的房子》-Skupaj Arhitekti在斯洛文尼亚建造“拒绝上下文模仿”的混凝土房屋

    21 张  

  • 《平原边缘的房子》-Skupaj Arhitekti在斯洛文尼亚建造“拒绝上下文模仿”的混凝土房屋
  •   家居建筑 
  •   2026-03-09

    Schemata Architects为内田商店总部重新设计带有金属遮阳篷的町屋

    31 张  

  • Schemata Architects为内田商店总部重新设计带有金属遮阳篷的町屋
  •   家居建筑 
  •   2026-01-16

    Snøhetta在Roeselare铁路现场增加了三栋建筑,以“重新连接城市”

    15 张  

  • Snøhetta在Roeselare铁路现场增加了三栋建筑,以“重新连接城市”
  •   家居建筑 
  •   2025-07-08

    Lo Design将金属建筑嵌入费城的褐石后院

    18 张  

  • Lo Design将金属建筑嵌入费城的褐石后院
  •   家居建筑 
  •   2025-07-07

    专为现代周末生活而设计的加州终极最小度假胜地

    12 张  

  • 专为现代周末生活而设计的加州终极最小度假胜地
  •   家居建筑 
  •   2025-06-26

    斯堪的纳维亚桑拿房设计

    11 张  

  • 斯堪的纳维亚桑拿房设计
  •   家居建筑 
  •   2025-06-19

    冬季中的童话三角小屋夜景图

    1 张  

  • 冬季中的童话三角小屋夜景图
  •   艺术摄影 
  •   2024-12-23

    形状似“拼图”的堆叠房屋建筑

    5 张  

  • 形状似“拼图”的堆叠房屋建筑
  •   家居建筑 
  •   2024-11-25

    世博会日本馆建筑设计

    6 张  

  • 世博会日本馆建筑设计
  •   家居建筑 
  •   2026-05-20

    RECYCLE _ Pop-Up Cafe __ 弹出式玻璃咖啡馆

    10 张  

  • RECYCLE _ Pop-Up Cafe __ 弹出式玻璃咖啡馆
  •   家居建筑 
  •   2026-05-16

    MONOLITH APARTMENT -现代别墅室内设计

    29 张  

  • MONOLITH APARTMENT -现代别墅室内设计
  •   家居建筑 
  •   2026-05-10

    韩国佛寺白灯笼禅意摄影

    1 张  

  • 韩国佛寺白灯笼禅意摄影
  •   艺术摄影 
  •   2026-05-09

    伦敦塔桥长曝光风景照

    1 张  

  • 伦敦塔桥长曝光风景照
  •   艺术摄影 
  •   2026-05-08

    上海静安寺夜景 古今交融城市风光摄影

    1 张  

  • 上海静安寺夜景 古今交融城市风光摄影
  •   艺术摄影 
  •   2026-05-07

    将粮仓改造成红色混凝土比什波村博物馆

    24 张  

  • 将粮仓改造成红色混凝土比什波村博物馆
  •   家居建筑 
  •   2026-05-07

    纳什维尔的音乐中心

    3 张  

  • 纳什维尔的音乐中心
  •   家居建筑 
  •   2026-05-06

  • + 家居建筑