•     
  • .pv   
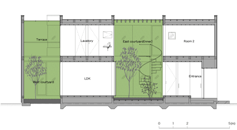
  • 日本建筑师-木桥和釉面花园房
     2011-12-15 20:41:46
    花园房
  • 图片信息简介:日本建筑师-木桥和釉面花园房·编号为907285,上传时间为2011-12-15 20:41:46,模式为RGB!
  • 上一篇  Salt&Pepper椒盐器皿设计
    下一篇  新加坡SPH猪肉品牌包装平面设计
    相关系列作品
    本・艾伦工作室在花园中设计的洋蓟形花园房

    26 张  

  • 本・艾伦工作室在花园中设计的洋蓟形花园房
  •   艺术摄影 
  •   2019-12-01

    花园房

    4 张  

  • 花园房
  •   家居建筑 
  •   2018-08-28

    日本建筑师-木桥和釉面花园房

    19 张  

  • 日本建筑师-木桥和釉面花园房
  •   家居建筑 
  •   2011-12-15

  • + 家居建筑